
松山市南斎院町 中古住宅 1,980万円
■内外装リフォーム済
(外壁屋根塗装、キッチン・浴室・トイレ新調、クロス・床張り替え)
■駐車2台可(縦列)
■マルナカ高岡店が徒歩圏内
■閑静な住宅地
-
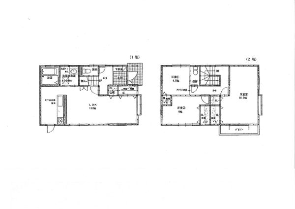
所在地松山市南斎院町715番地6
- 土地
-
地目宅地現況建付け地面積114.00㎡ / 34.48坪道路東側 幅4m接道幅
- 建物
-
構造木造建築面積延面積97.70㎡ / 29.55坪引渡相談用途居宅建築平成8年(1996年)3月
- 設備
-
下水公共下水道水道公営水道学校味生第二小学校 / 津田中学校交通いよてつバス 富久口バス停より徒歩5分
- 法制限
-
用途第一種住居地域建ペイ60%容積160%その他・空き家
- アクセス解析ツールについて
- 当サイトでは、サイトの分析と改善を目的として Google によるアクセス解析ツール「Google Analytics」を利用しています。
Google Analytics はデータ収集のため Cookie を使用しています。当サイトをご利用中のウェブブラウザは、アクセスしたページのウェブアドレスや IP アドレス等、特定の情報を Google に自動的に送信します。このデータは匿名で収集されており、個人を特定するものではありません。
収集された情報は、Google のプライバシーポリシーに基づいて管理されます。
この規約に関して、詳しくは以下をご覧下さい。
・Google プライバシーポリシー(https://policies.google.com/technologies/partner-sites?hl=ja)
・Google Analytics 利用規約(https://www.google.com/intl/ja/analytics/terms/jp.html)





































