
東温市牛渕 中古住宅 2,680万円
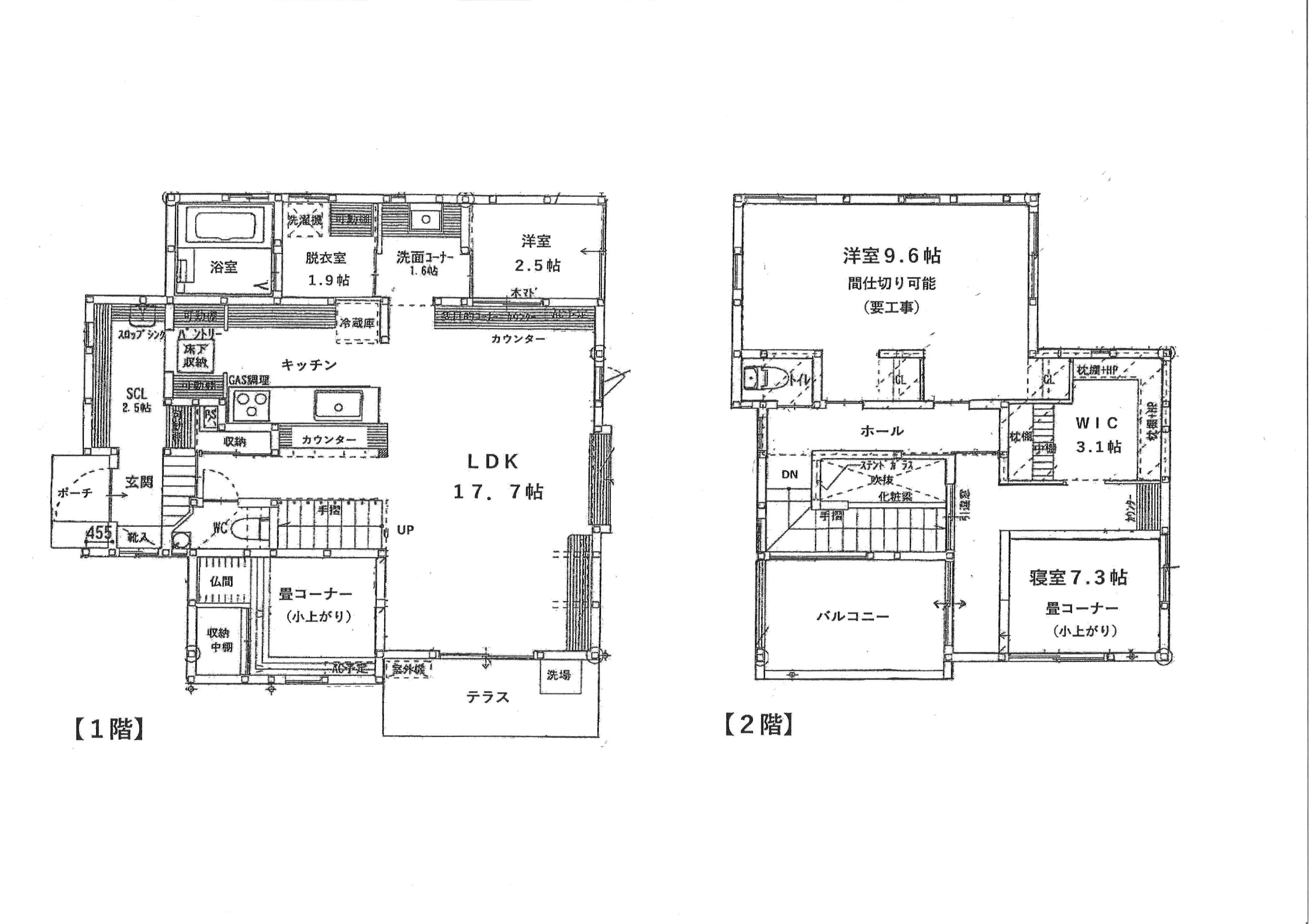
■モダンテイストの築浅住宅
■田園風景が広がるのどかな環境(石鎚山が一望できます!)
■床は無垢材、壁は漆喰を採用(一部クロス)
■シューズクローク、WIC 、小屋裏ありで収納が充実
■小上がりの畳コーナー、リビング階段、吹き抜け有
■コストコ出店予定地まで車で約5分
■伊予鉄道 牛渕駅より徒歩約2分
-
所在地東温市牛渕1543番地4
- 土地
-
地目宅地現況建付け地面積174.73㎡ / 52.85坪道路西側公道 幅約4m接道幅2m
- 建物
-
構造木造建築面積65.62㎡延面積107.02㎡ / 32.37坪引渡相談用途居宅建築2019年(平成31年)3月
- 設備
-
下水公共下水道水道公営水道学校南吉井小学校 / 重信中学校交通伊予鉄道 牛渕駅より徒歩2分
- 法制限
-
用途市街化調整区域建ペイ70%容積200%その他空き家
駐車2台可能(縦列)
- アクセス解析ツールについて
- 当サイトでは、サイトの分析と改善を目的として Google によるアクセス解析ツール「Google Analytics」を利用しています。
Google Analytics はデータ収集のため Cookie を使用しています。当サイトをご利用中のウェブブラウザは、アクセスしたページのウェブアドレスや IP アドレス等、特定の情報を Google に自動的に送信します。このデータは匿名で収集されており、個人を特定するものではありません。
収集された情報は、Google のプライバシーポリシーに基づいて管理されます。
この規約に関して、詳しくは以下をご覧下さい。
・Google プライバシーポリシー(https://policies.google.com/technologies/partner-sites?hl=ja)
・Google Analytics 利用規約(https://www.google.com/intl/ja/analytics/terms/jp.html)













































