
松山市湊町㈢ 中古マンション ロージュ湊町 9階 2,350万円
松山市湊町㈢ 中古マンション ロージュ湊町 9階
ペット相談
-
所在地松山市湊町3丁目建物名ロージュ湊町
- 土地
-
地目宅地現況空室面積壁芯64.75㎡(19.58坪)権利所有権道路接道幅
- 建物
-
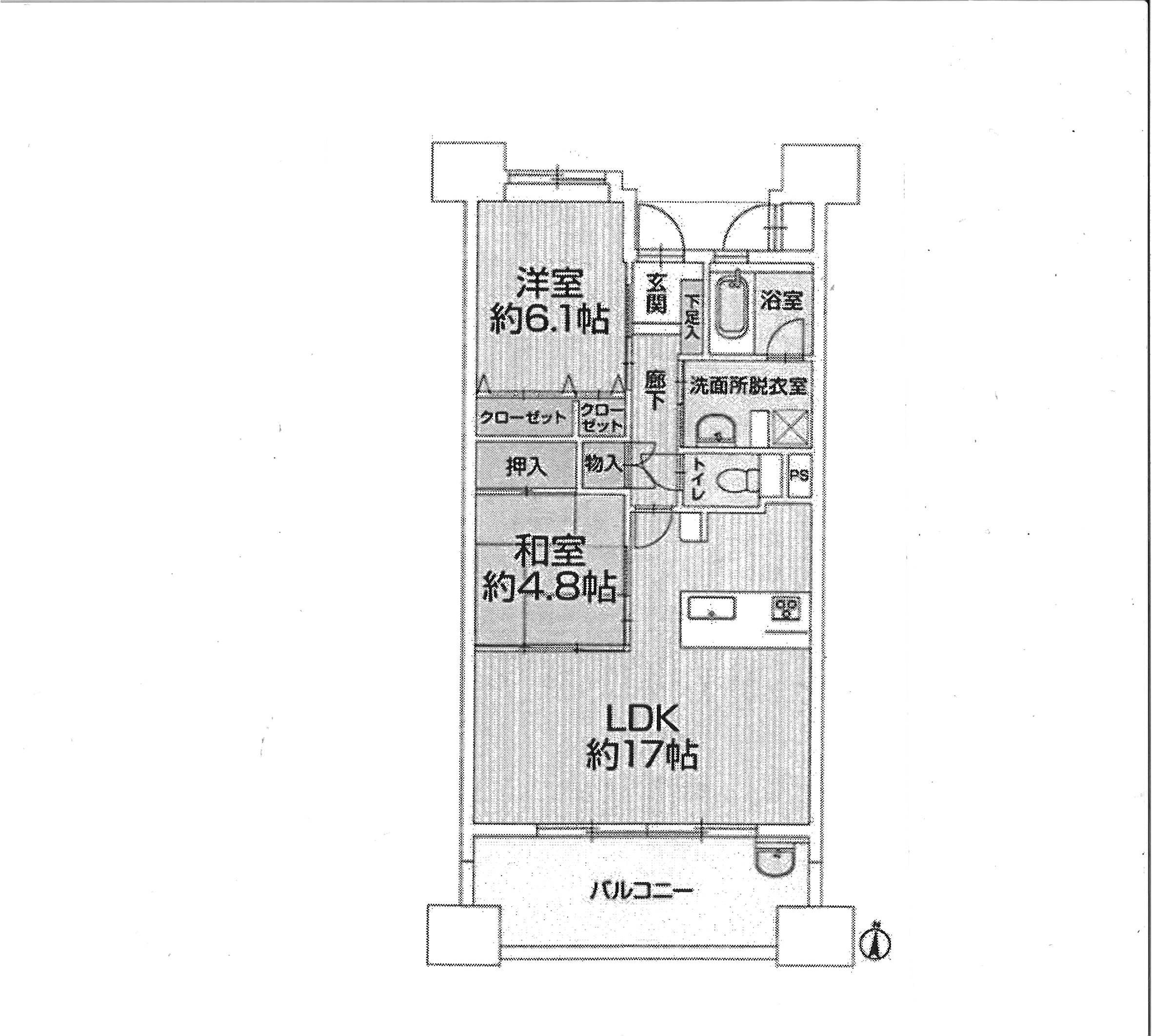
構造鉄筋コンクリート造専有面積64.75㎡(19.58坪)公簿面積引渡即時用途居宅建築平成22年5月築管理費6,500円/月修繕積立金6,480円/月駐車場10,000円/月バルコニー向き南側間取り2LDK
- 設備
-
下水水道学校番町小学校 東中学校交通伊予鉄横河原線石手川公園駅 徒歩9分
- 法制限
-
用途商業地域建ペイ容積その他
- アクセス解析ツールについて
- 当サイトでは、サイトの分析と改善を目的として Google によるアクセス解析ツール「Google Analytics」を利用しています。
Google Analytics はデータ収集のため Cookie を使用しています。当サイトをご利用中のウェブブラウザは、アクセスしたページのウェブアドレスや IP アドレス等、特定の情報を Google に自動的に送信します。このデータは匿名で収集されており、個人を特定するものではありません。
収集された情報は、Google のプライバシーポリシーに基づいて管理されます。
この規約に関して、詳しくは以下をご覧下さい。
・Google プライバシーポリシー(https://policies.google.com/technologies/partner-sites?hl=ja)
・Google Analytics 利用規約(https://www.google.com/intl/ja/analytics/terms/jp.html)































