
      松山市星岡3丁目      1,600万円      
            
■星ヶ岡公園近くの閑静な住宅地
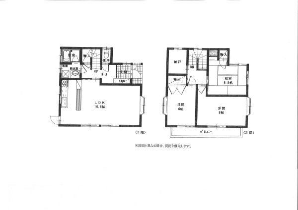
■普通車2台、軽1台駐車可
■納戸あり
■南面バルコニー
- 
        所在地松山市星岡3丁目
- 土地
- 
        地目宅地現況建付け地面積131.79㎡ / 39.86坪道路東側 幅約4m接道幅約4.5m
- 建物
- 
        構造木造建築面積44.55㎡延面積90.72㎡ / 27.44坪引渡相談用途居宅建築平成6年(1994年)10月
- 設備
- 
        下水公共下水道水道公営水道学校福音小学校 / 南第二中学校交通伊予鉄道 福音寺駅まで徒歩17分
- 法制限
- 
        用途第一種低層住居専用地域建ペイ50%容積80%その他※現在居住中
- アクセス解析ツールについて
- 当サイトでは、サイトの分析と改善を目的として Google によるアクセス解析ツール「Google Analytics」を利用しています。
 Google Analytics はデータ収集のため Cookie を使用しています。当サイトをご利用中のウェブブラウザは、アクセスしたページのウェブアドレスや IP アドレス等、特定の情報を Google に自動的に送信します。このデータは匿名で収集されており、個人を特定するものではありません。
 収集された情報は、Google のプライバシーポリシーに基づいて管理されます。
 この規約に関して、詳しくは以下をご覧下さい。
 ・Google プライバシーポリシー(https://policies.google.com/technologies/partner-sites?hl=ja)
 ・Google Analytics 利用規約(https://www.google.com/intl/ja/analytics/terms/jp.html)












 
			 
    
























