株式会社岩上ハウジング

(株)岩上ハウジングでは愛媛県松山市を中心に不動産売買・賃貸マンションアパート、事務所、店舗等の仲介業務を行っています。

089-947-5525
089-947-5548
スタッフおすすめ物件
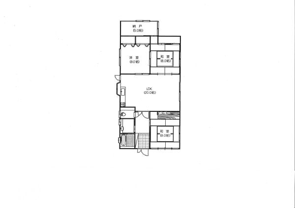
松山市平井町 平屋中古住宅 2,750万円

■人気の平屋建て

■閑静な住宅地

■駐車並列2台可(門扉撤去で3台可能)

■平井駅まで約750m(徒歩10分)

■小野小学校まで約380m(徒歩5分)

 

 

 

所在地
松山市平井町甲1122番1
土地
地目
宅地
現況
建付け地
面積
283.39㎡ / 85.72坪
道路
南側 幅5.5m
接道幅
8.5m
建物
構造
木造瓦葺き平屋建て
建築面積
114.16㎡
延面積
114.16㎡ / 34.53坪
引渡
相談
用途
居宅
建築
平成13年12月
設備
下水
浄化槽
水道
上水道
学校
小野小学校 / 小野中学校
交通
伊予鉄道 平井駅より徒歩9分
法制限
用途
市街化調整区域(旧既存宅地ですが、一部土地(99㎡)は既存宅地ではありません)
建ペイ
70%
容積
200%
その他
空き家

お問い合わせフォーム

お問い合わせ物件
松山市平井町 平屋中古住宅 2,750万円
お名前
メールアドレス
メールアドレス(再入力)
住所
お電話番号
- -
お問い合わせ内容
アクセス解析ツールについて
当サイトでは、サイトの分析と改善を目的として Google によるアクセス解析ツール「Google Analytics」を利用しています。
Google Analytics はデータ収集のため Cookie を使用しています。当サイトをご利用中のウェブブラウザは、アクセスしたページのウェブアドレスや IP アドレス等、特定の情報を Google に自動的に送信します。このデータは匿名で収集されており、個人を特定するものではありません。
収集された情報は、Google のプライバシーポリシーに基づいて管理されます。
この規約に関して、詳しくは以下をご覧下さい。
・Google プライバシーポリシー(https://policies.google.com/technologies/partner-sites?hl=ja)
・Google Analytics 利用規約(https://www.google.com/intl/ja/analytics/terms/jp.html)

松山市平井町 平屋中古住宅
2,750万円

松山市和泉南4丁目 中古住宅
2,150万円

松山市市坪南1丁目 中古住宅 値下げしました。
1,390万円

松山市平井町 中古住宅
2,550万円

松山市石風呂町 リフォーム住宅
1,899万円

松山市北梅本町 中古住宅
3,190万円

松山市西長戸町 中古住宅
2,199万円

松山市中村四丁目 中古住宅
1,780万円

松山市山越1丁目 中古住宅
3,500万円

松山市別府町 リフォーム住宅
2,399万円

松山市古川西3丁目 中古住宅
3,400万円

松山市湯の山東1丁目 中古住宅
1,998万円

松山市湯の山3丁目 中古住宅
1,599万円

伊予郡松前町浜 中古住宅(値下げしました)
1,790万円

松山市溝辺町
1,820万円

松山市鷹子町 中古住宅(リフォーム中)
2,999万円

伊予郡砥部町千足 中古住宅
2,100万円

松山市古川南3丁目 中古住宅
3,180万円

松山市石風呂町 中古住宅 値下げしました
980万円

松山市北斎院町 未入居住宅
2,490万円