
松山市北斎院町 未入居住宅 2,490万円
■令和7年1月築の未入居住宅
■スーパー、ドラッグストア徒歩圏内
■駐車2台可(縦列)
■ZEH水準住宅
■全居室収納(ウォークインクローゼット完備)
-
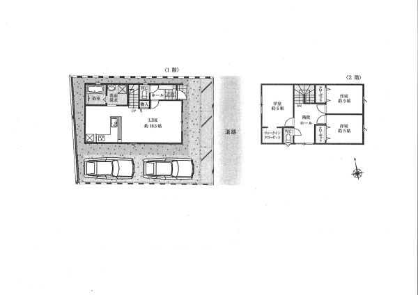
所在地松山市北斎院町678番地8
- 土地
-
地目宅地現況建付け地面積105.09㎡ / 31.78坪道路東側 幅4m接道幅約9m
- 建物
-
構造木造建築面積延面積83.62㎡ / 25.29坪引渡相談用途居宅建築令和7年(2025年)1月
- 設備
-
下水公共下水道水道公営水道学校味生第二小学校 / 津田中学校交通伊予鉄道 味生バス停より徒歩約3分
- 法制限
-
用途第一種住居地域建ペイ60%容積200%その他空き家
- アクセス解析ツールについて
- 当サイトでは、サイトの分析と改善を目的として Google によるアクセス解析ツール「Google Analytics」を利用しています。
Google Analytics はデータ収集のため Cookie を使用しています。当サイトをご利用中のウェブブラウザは、アクセスしたページのウェブアドレスや IP アドレス等、特定の情報を Google に自動的に送信します。このデータは匿名で収集されており、個人を特定するものではありません。
収集された情報は、Google のプライバシーポリシーに基づいて管理されます。
この規約に関して、詳しくは以下をご覧下さい。
・Google プライバシーポリシー(https://policies.google.com/technologies/partner-sites?hl=ja)
・Google Analytics 利用規約(https://www.google.com/intl/ja/analytics/terms/jp.html)




































