
松山市北斎院町 新築住宅 3,320万円
■耐震等級3取得のオール電化住宅
■EV充電設備有り
■南面道路で日当たり良好
■ランドリースペース、パントリー完備
■駐車並列2台可
-
所在地松山市別府町乙25-38
- 土地
-
地目宅地現況建付け地面積135.11㎡ / 40.87坪道路南側 幅5.3m接道幅約10.5m
- 建物
-
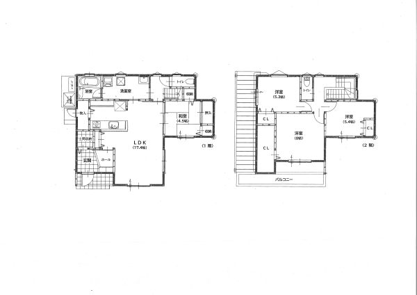
構造木造建築面積66.24㎡延面積110.96㎡ / 33.56坪引渡相談用途居宅建築令和7年8月
- 設備
-
下水公共下水道水道公営水道学校味生第二小学校 / 津田中学校交通伊予鉄バス 御産所バス停より徒歩6分
伊予鉄道 山西駅より徒歩13分
- 法制限
-
用途第1種住居地域建ペイ60%容積200%その他■空き家
■境界ブロック費用:285,356円
■下水道負担金:33,778円
- アクセス解析ツールについて
- 当サイトでは、サイトの分析と改善を目的として Google によるアクセス解析ツール「Google Analytics」を利用しています。
Google Analytics はデータ収集のため Cookie を使用しています。当サイトをご利用中のウェブブラウザは、アクセスしたページのウェブアドレスや IP アドレス等、特定の情報を Google に自動的に送信します。このデータは匿名で収集されており、個人を特定するものではありません。
収集された情報は、Google のプライバシーポリシーに基づいて管理されます。
この規約に関して、詳しくは以下をご覧下さい。
・Google プライバシーポリシー(https://policies.google.com/technologies/partner-sites?hl=ja)
・Google Analytics 利用規約(https://www.google.com/intl/ja/analytics/terms/jp.html)


































