
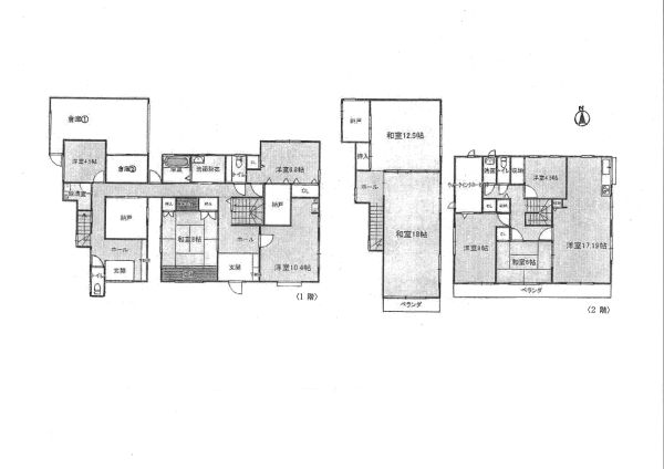
松山市津吉町 中古住宅(リフォーム済) 2,280万円
■2世帯、3世帯向けの広々した住宅
■内装リフォーム済(水廻り、クロス、床など)
■駐車場6台程度可
■南面道路に面しており日当たり良好
■南側道路幅 約6.7m
-
所在地松山市津吉町511番地11
- 土地
-
地目宅地現況建付け地面積370.74㎡ / 112.14坪道路南側 幅6.7m接道幅約12m
- 建物
-
構造木造建築面積延面積298.74㎡ / 90.36坪引渡相談用途居宅建築1991年(平成3年)5月築
- 設備
-
下水浄化槽水道公営水道学校荏原小学校 / 久谷中学校交通中野石鎚前バス停より徒歩15分
- 法制限
-
用途居宅建ペイ70%容積200%その他空き家
- アクセス解析ツールについて
- 当サイトでは、サイトの分析と改善を目的として Google によるアクセス解析ツール「Google Analytics」を利用しています。
Google Analytics はデータ収集のため Cookie を使用しています。当サイトをご利用中のウェブブラウザは、アクセスしたページのウェブアドレスや IP アドレス等、特定の情報を Google に自動的に送信します。このデータは匿名で収集されており、個人を特定するものではありません。
収集された情報は、Google のプライバシーポリシーに基づいて管理されます。
この規約に関して、詳しくは以下をご覧下さい。
・Google プライバシーポリシー(https://policies.google.com/technologies/partner-sites?hl=ja)
・Google Analytics 利用規約(https://www.google.com/intl/ja/analytics/terms/jp.html)










































