
松山市堀江町 中古住宅(リフォーム済) 1,619万円
■内外装リフォーム済(水廻り、クロス、外壁等)
■耐震工事実施
■シロアリ防除工事済
■駐車場4台可能
-
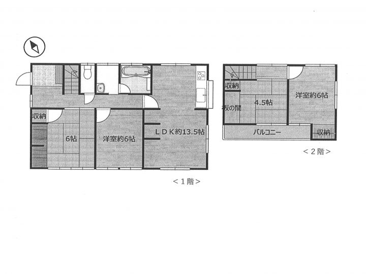
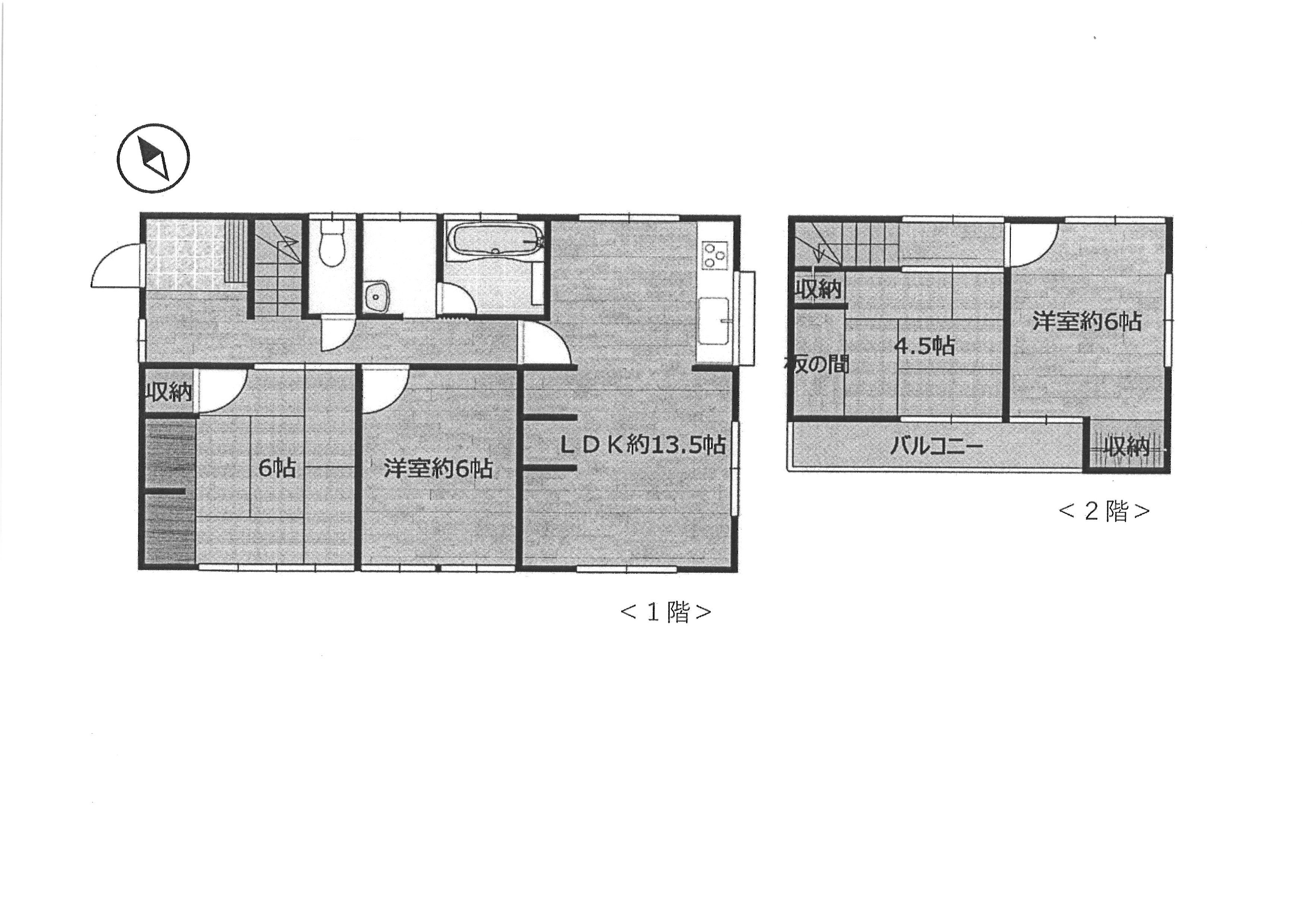
所在地松山市堀江町甲697番22
- 土地
-
地目宅地現況建付け地面積166.55㎡ / 50.38坪道路西側 幅4m接道幅約15m
- 建物
-
構造木造建築面積70.22㎡延面積97.12㎡ / 29.38坪引渡相談用途居宅建築昭和55年(1980年)7月 ※耐震工事実施済
- 設備
-
下水公共下水道水道公営水道学校堀江小学校 / 内宮中学校交通伊予鉄バス 花見橋バス停より徒歩14分
- 法制限
-
用途第一種住居地域建ペイ60%容積200%その他空き家
耐震基準適合証明書を発行する際は、別途23万円(税別)要
- アクセス解析ツールについて
- 当サイトでは、サイトの分析と改善を目的として Google によるアクセス解析ツール「Google Analytics」を利用しています。
Google Analytics はデータ収集のため Cookie を使用しています。当サイトをご利用中のウェブブラウザは、アクセスしたページのウェブアドレスや IP アドレス等、特定の情報を Google に自動的に送信します。このデータは匿名で収集されており、個人を特定するものではありません。
収集された情報は、Google のプライバシーポリシーに基づいて管理されます。
この規約に関して、詳しくは以下をご覧下さい。
・Google プライバシーポリシー(https://policies.google.com/technologies/partner-sites?hl=ja)
・Google Analytics 利用規約(https://www.google.com/intl/ja/analytics/terms/jp.html)






































