
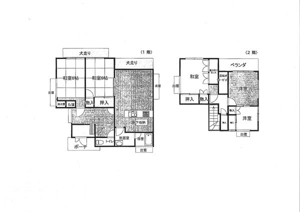
松山市安城寺町 中古住宅 1,450万円
■建物約35坪とゆとりある広さ
■閑静な住宅地です
■お買物に便利な環境
■前面道路幅が約6mで駐車しやすい
■駐車場1台
-
所在地松山市安城寺町1-22
- 土地
-
地目宅地現況建付け地面積146.16㎡ / 44.21坪道路北側 幅約6m接道幅約10.5m
- 建物
-
構造木造瓦葺き建築面積68.46㎡延面積116.90㎡ / 35.36坪引渡相談用途居宅建築平成3年2月
- 設備
-
下水浄化槽水道公営水道学校久枝小学校 / 鴨川中学校交通西長戸バス停より徒歩11分
- 法制限
-
用途第一種低層住居専用地域建ペイ50%容積80%その他空き家
- アクセス解析ツールについて
- 当サイトでは、サイトの分析と改善を目的として Google によるアクセス解析ツール「Google Analytics」を利用しています。
Google Analytics はデータ収集のため Cookie を使用しています。当サイトをご利用中のウェブブラウザは、アクセスしたページのウェブアドレスや IP アドレス等、特定の情報を Google に自動的に送信します。このデータは匿名で収集されており、個人を特定するものではありません。
収集された情報は、Google のプライバシーポリシーに基づいて管理されます。
この規約に関して、詳しくは以下をご覧下さい。
・Google プライバシーポリシー(https://policies.google.com/technologies/partner-sites?hl=ja)
・Google Analytics 利用規約(https://www.google.com/intl/ja/analytics/terms/jp.html)




































