
高井町売り住宅 1,750万円
コープ久米まで1,954m、ファミリーマート松山久米窪田町店まで763m、ファミリーマート松山ていれぎ店まで772m、松山市立久米中学校まで1,746m、松山市立窪田小学校まで729m、松山リハビリテーション病院まで828m、松山高井簡易郵便局まで696m、杖ノ淵公園まで911m
-
所在地松山市高井町814番1
- 土地
-
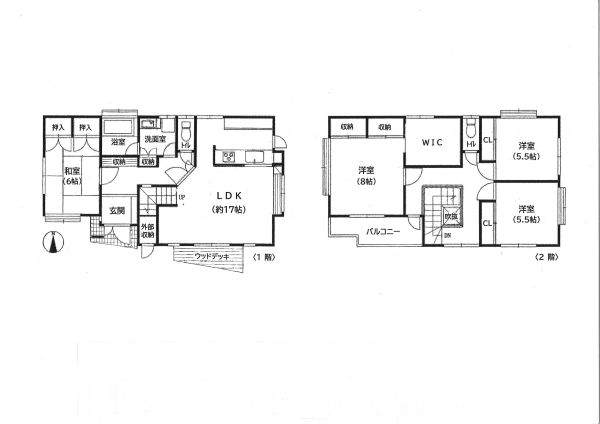
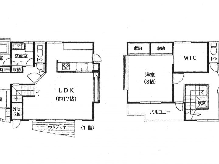
地目宅地現況空家面積128.81㎡(38.97坪)道路南側 公道 幅員約3.0m接道幅約17.57m
- 建物
-
構造木造スレート葺2階建て建築面積60.34㎡延面積118.72㎡(35.91坪)引渡相談用途居宅建築平成10年3月14日 新築
- 設備
-
下水合併浄化槽水道地下水学校窪田小学校・久米中学校交通伊予鉄高井北バス停 徒歩3分
- 法制限
-
用途市街化調整区域建ペイ70容積200その他リフォーム歴あり:外壁・屋根(平成26年頃)、1階トイレ・洗面(平成30年頃)、玄関クロス・キッチン(令和2年頃)
田園風景が眺められる風通りの良い立地です。ウォークインクローゼットもあり収納も充実しています。駐車場2台可、屋根裏あり
- アクセス解析ツールについて
- 当サイトでは、サイトの分析と改善を目的として Google によるアクセス解析ツール「Google Analytics」を利用しています。
Google Analytics はデータ収集のため Cookie を使用しています。当サイトをご利用中のウェブブラウザは、アクセスしたページのウェブアドレスや IP アドレス等、特定の情報を Google に自動的に送信します。このデータは匿名で収集されており、個人を特定するものではありません。
収集された情報は、Google のプライバシーポリシーに基づいて管理されます。
この規約に関して、詳しくは以下をご覧下さい。
・Google プライバシーポリシー(https://policies.google.com/technologies/partner-sites?hl=ja)
・Google Analytics 利用規約(https://www.google.com/intl/ja/analytics/terms/jp.html)













































