
松山市古三津㈡ 中古マンション サーパス三津浜駅通り 6階 2,480万円
松山市古三津㈡ 中古マンション サーパス三津浜駅通り 6階
ペット相談(小型犬/猫/規約あり)バイク置場有 駐輪場有
-
所在地松山市古三津2丁目建物名サーパス三津浜駅通り
- 土地
-
地目宅地現況空室面積壁芯92.75㎡(28.05坪)権利所有権道路接道幅
- 建物
-
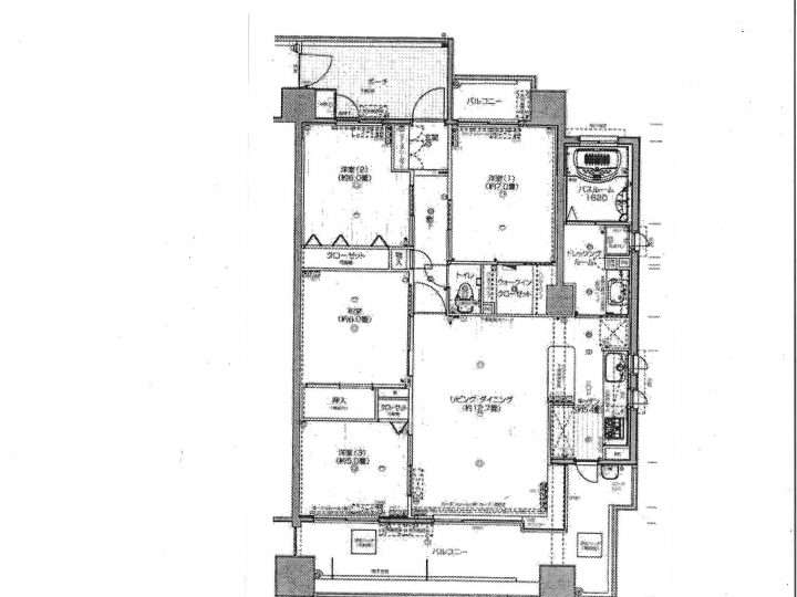
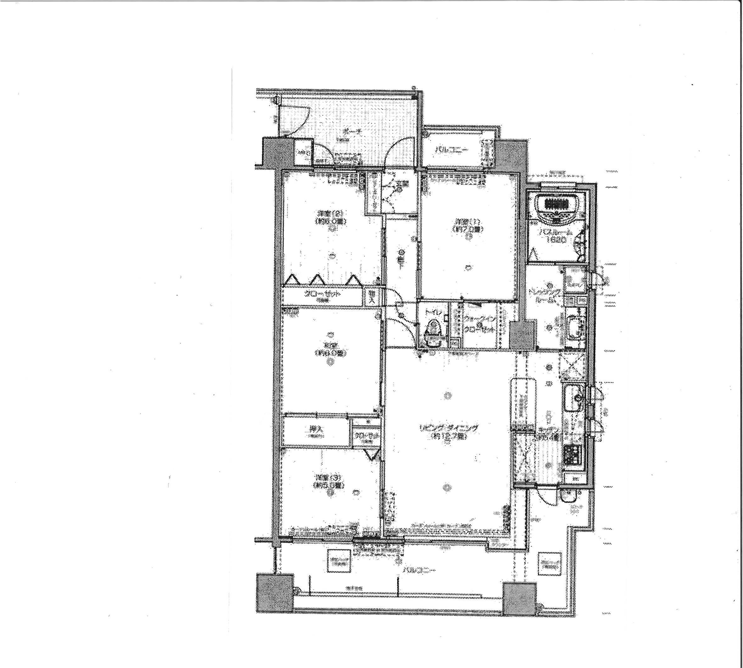
構造鉄筋コンクリート造専有面積92.75㎡(28.05坪)公簿面積引渡相談用途居宅建築平成18年10月築管理費7,000円/月修繕積立金13,400円/月駐車場3,000円/月バルコニー向き間取り4LDK
- 設備
-
下水水道学校宮前小学校 三津浜中学校交通JR予讃線三津浜駅 徒歩4分 伊予鉄三津大明神前バス停 徒歩4分
- 法制限
-
用途第一種住居地域建ペイ60容積200その他インターネット使用料:4,095円/月
- アクセス解析ツールについて
- 当サイトでは、サイトの分析と改善を目的として Google によるアクセス解析ツール「Google Analytics」を利用しています。
Google Analytics はデータ収集のため Cookie を使用しています。当サイトをご利用中のウェブブラウザは、アクセスしたページのウェブアドレスや IP アドレス等、特定の情報を Google に自動的に送信します。このデータは匿名で収集されており、個人を特定するものではありません。
収集された情報は、Google のプライバシーポリシーに基づいて管理されます。
この規約に関して、詳しくは以下をご覧下さい。
・Google プライバシーポリシー(https://policies.google.com/technologies/partner-sites?hl=ja)
・Google Analytics 利用規約(https://www.google.com/intl/ja/analytics/terms/jp.html)









































