
松山市北持田町 中古マンション ダイアパレスロイヤル持田 7階 1,850万円
松山市北持田町 中古マンション ダイアパレスロイヤル持田 7階
バイク置場有(無料) 駐輪場有(無料)
-
所在地松山市北持田町建物名ダイアパレスロイヤル持田
- 土地
-
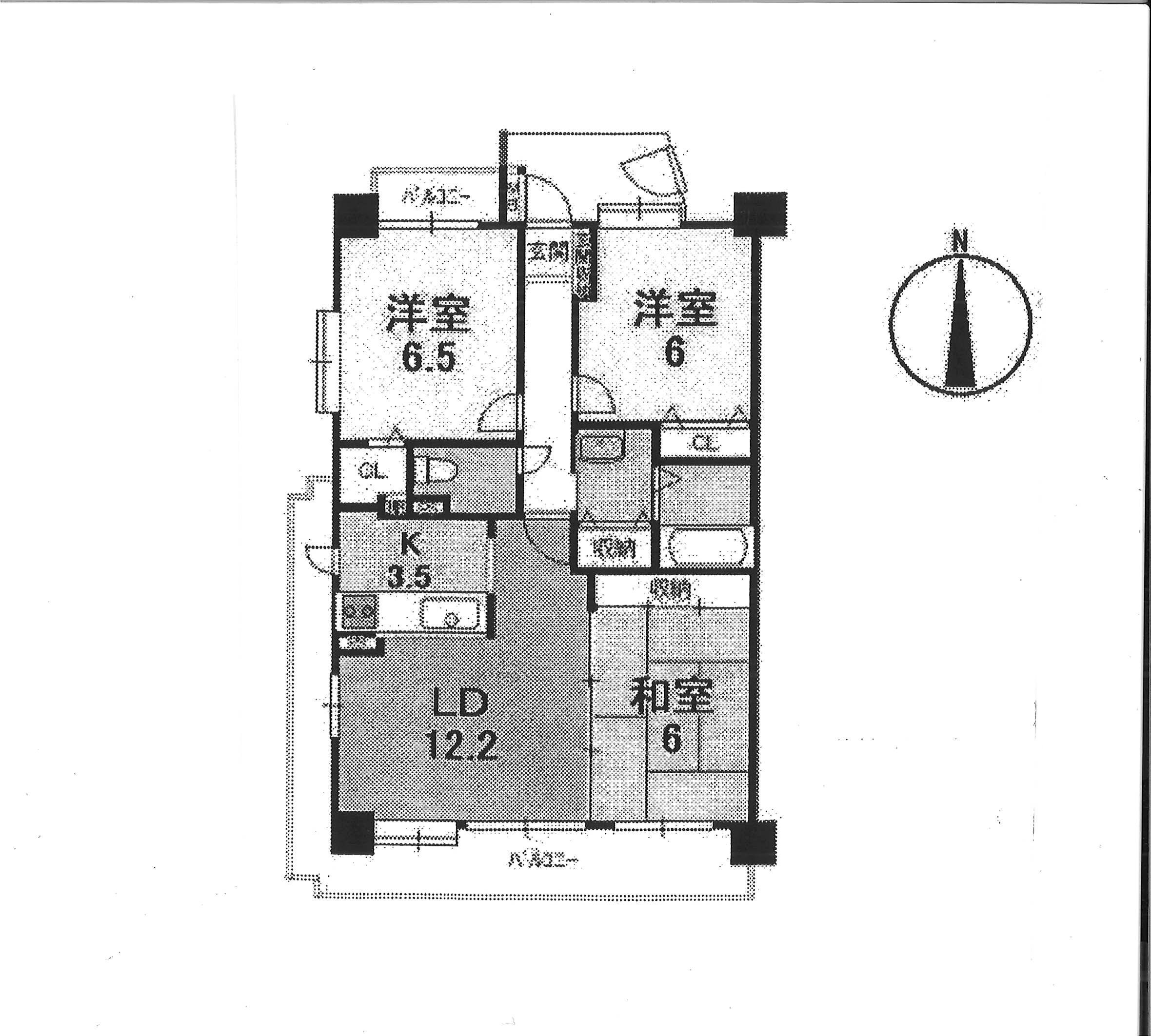
地目宅地現況空室面積壁芯75.48㎡(22.83坪)権利所有権道路接道幅
- 建物
-
構造鉄骨鉄筋コンクリート造専有面積75.48㎡(22.83坪)公簿面積引渡相談用途居宅建築平成11年6月築管理費12,076円/月修繕積立金16,600円/月駐車場有 12,000円/月バルコニー向き間取り3LDK
- 設備
-
下水水道学校東雲小学校 東中学校交通伊予鉄警察前バス停 徒歩1分 伊予鉄環状線警察署前 徒歩2分
- 法制限
-
用途近隣商業地域建ペイ容積その他
- アクセス解析ツールについて
- 当サイトでは、サイトの分析と改善を目的として Google によるアクセス解析ツール「Google Analytics」を利用しています。
Google Analytics はデータ収集のため Cookie を使用しています。当サイトをご利用中のウェブブラウザは、アクセスしたページのウェブアドレスや IP アドレス等、特定の情報を Google に自動的に送信します。このデータは匿名で収集されており、個人を特定するものではありません。
収集された情報は、Google のプライバシーポリシーに基づいて管理されます。
この規約に関して、詳しくは以下をご覧下さい。
・Google プライバシーポリシー(https://policies.google.com/technologies/partner-sites?hl=ja)
・Google Analytics 利用規約(https://www.google.com/intl/ja/analytics/terms/jp.html)












































