
松山市山越㈣ 中古マンション シエナ松山ハイツ 8階 570万円
松山市山越㈣ 中古マンション シエナ松山ハイツ 8階
-
所在地松山市山越4丁目建物名シエナ松山ハイツ
- 土地
-
地目宅地現況空室面積内法48.36㎡(14.62坪)権利所有権道路接道幅
- 建物
-
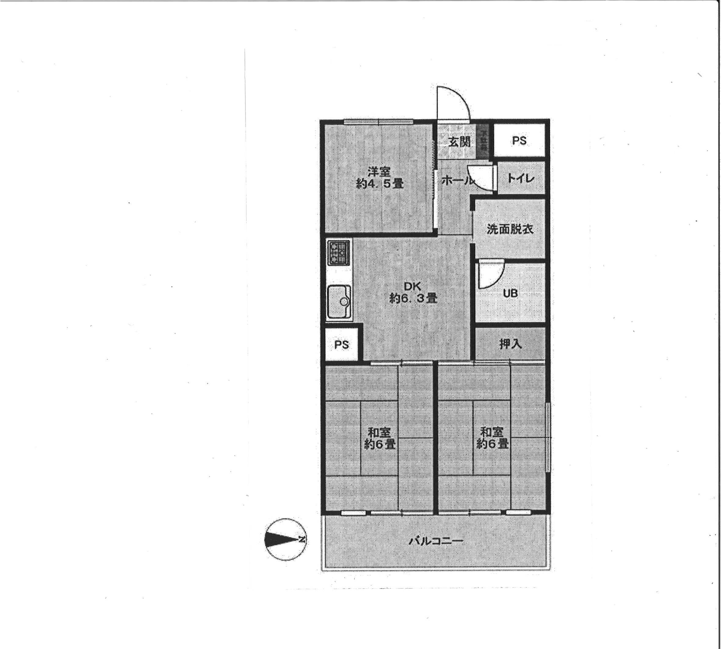
構造鉄骨鉄筋コンクリート造専有面積48.36㎡(14.62坪)公簿面積内法48.36㎡(14.62坪)引渡相談用途居宅建築昭和54年5月築管理費6,200円/月修繕積立金8,500円/月駐車場5,000円/月バルコニー向き東向き間取り3DK
- 設備
-
下水水道学校姫山小学校 勝山中学校交通伊予鉄北山越バス停 徒歩2分 伊予鉄環状線本町六丁目 徒歩13分
- 法制限
-
用途第一種住居地域建ペイ60%容積200%その他
- アクセス解析ツールについて
- 当サイトでは、サイトの分析と改善を目的として Google によるアクセス解析ツール「Google Analytics」を利用しています。
Google Analytics はデータ収集のため Cookie を使用しています。当サイトをご利用中のウェブブラウザは、アクセスしたページのウェブアドレスや IP アドレス等、特定の情報を Google に自動的に送信します。このデータは匿名で収集されており、個人を特定するものではありません。
収集された情報は、Google のプライバシーポリシーに基づいて管理されます。
この規約に関して、詳しくは以下をご覧下さい。
・Google プライバシーポリシー(https://policies.google.com/technologies/partner-sites?hl=ja)
・Google Analytics 利用規約(https://www.google.com/intl/ja/analytics/terms/jp.html)











































