
松山市鷹子町 中古マンション ダイアパレス鷹子 4階 1,550万円
松山市鷹子町 中古マンション ダイアパレス鷹子 4階
-
所在地松山市鷹子町建物名ダイアパレス鷹子
- 土地
-
地目宅地現況居住中面積壁芯73.71㎡(22.29坪)権利所有権道路接道幅
- 建物
-
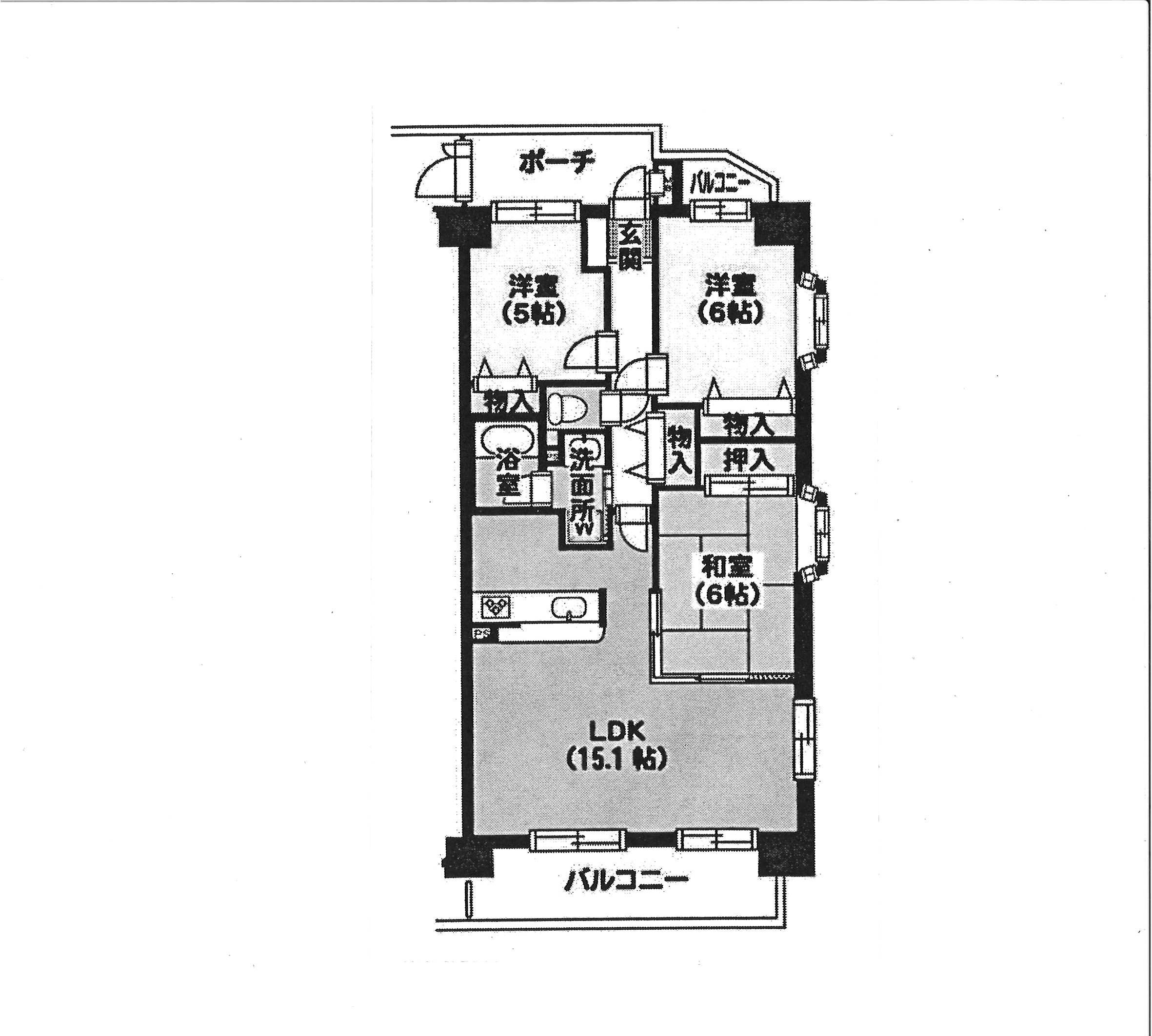
構造鉄骨鉄筋コンクリート造専有面積73.71㎡(22.29坪)公簿面積引渡相談用途居宅建築平成8年2月築管理費8,400円/月修繕積立金9,400円/月駐車場6,500円/月バルコニー向き間取り3LDK
- 設備
-
下水水道学校久米小学校 久米中学校交通伊予鉄横河原線久米駅 徒歩6分 伊予鉄久米駅前バス停 徒歩7分
- 法制限
-
用途第一種住居地域建ペイ60容積200その他
- アクセス解析ツールについて
- 当サイトでは、サイトの分析と改善を目的として Google によるアクセス解析ツール「Google Analytics」を利用しています。
Google Analytics はデータ収集のため Cookie を使用しています。当サイトをご利用中のウェブブラウザは、アクセスしたページのウェブアドレスや IP アドレス等、特定の情報を Google に自動的に送信します。このデータは匿名で収集されており、個人を特定するものではありません。
収集された情報は、Google のプライバシーポリシーに基づいて管理されます。
この規約に関して、詳しくは以下をご覧下さい。
・Google プライバシーポリシー(https://policies.google.com/technologies/partner-sites?hl=ja)
・Google Analytics 利用規約(https://www.google.com/intl/ja/analytics/terms/jp.html)













































