
松山市空港通(一) 中古マンション サーパス空港通 11階 値下げしました。 1,880万円
松山市空港通(一) 中古マンション サーパス空港通 11階
-
所在地松山市空港通1丁目建物名サーパス空港通
- 土地
-
地目宅地現況空室面積壁芯87.30㎡(26.40坪)権利所有権道路接道幅
- 建物
-
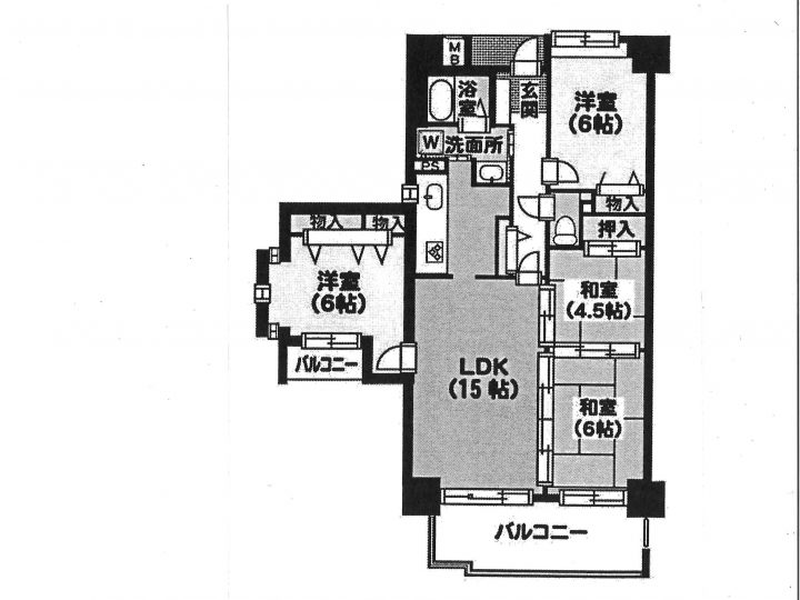
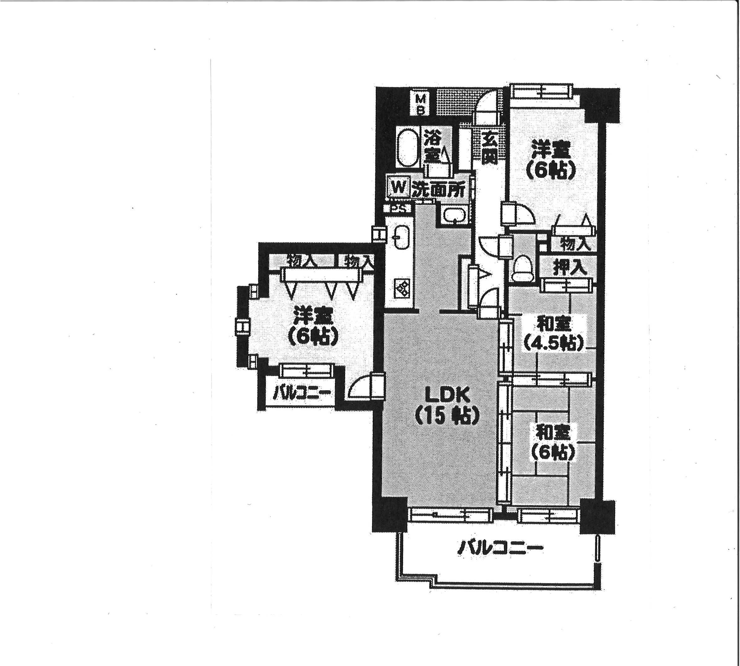
構造鉄筋コンクリート造専有面積87.30㎡(26.40坪)公簿面積引渡相談用途居宅建築平成3年2月築管理費7,800円/月修繕積立金11,300円/月駐車場5,000円~8,000円/月バルコニー向き間取り4LDK
- 設備
-
下水水道学校双葉小学校 雄新中学校交通伊予鉄竹原南バス停 徒歩4分 伊予鉄郡中線土居田駅 徒歩9分
- 法制限
-
用途第一種住居地域建ペイ60容積200その他
- アクセス解析ツールについて
- 当サイトでは、サイトの分析と改善を目的として Google によるアクセス解析ツール「Google Analytics」を利用しています。
Google Analytics はデータ収集のため Cookie を使用しています。当サイトをご利用中のウェブブラウザは、アクセスしたページのウェブアドレスや IP アドレス等、特定の情報を Google に自動的に送信します。このデータは匿名で収集されており、個人を特定するものではありません。
収集された情報は、Google のプライバシーポリシーに基づいて管理されます。
この規約に関して、詳しくは以下をご覧下さい。
・Google プライバシーポリシー(https://policies.google.com/technologies/partner-sites?hl=ja)
・Google Analytics 利用規約(https://www.google.com/intl/ja/analytics/terms/jp.html)













































