
松山市古川西㈢ 新築マンション ラルステージ古川西 11階 3,990万円

松山市古川西㈢ 新築マンション ラルステージ古川西 11階
-
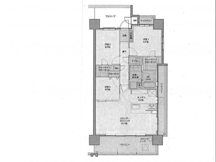
所在地松山市古川西3丁目建物名ラルステージ古川西
- 土地
-
地目宅地現況空室面積壁芯74.63㎡(22.57坪)権利所有権道路接道幅
- 建物
-
構造鉄筋コンクリート造専有面積74.63㎡(22.57坪)公簿面積引渡即時用途居宅建築令和7年3月築管理費13,100円/月修繕積立金410,000円(一括払い)駐車場6,000円/月バルコニー向き南側・西側間取り3LDK
- 設備
-
下水公共下水道水道公営水道学校椿小学校 椿中学校交通伊予鉄南古川バス停 徒歩4分 JR予讃線市坪駅 徒歩14分
- 法制限
-
用途第一種住居地域建ペイ60容積200その他
- アクセス解析ツールについて
- 当サイトでは、サイトの分析と改善を目的として Google によるアクセス解析ツール「Google Analytics」を利用しています。
Google Analytics はデータ収集のため Cookie を使用しています。当サイトをご利用中のウェブブラウザは、アクセスしたページのウェブアドレスや IP アドレス等、特定の情報を Google に自動的に送信します。このデータは匿名で収集されており、個人を特定するものではありません。
収集された情報は、Google のプライバシーポリシーに基づいて管理されます。
この規約に関して、詳しくは以下をご覧下さい。
・Google プライバシーポリシー(https://policies.google.com/technologies/partner-sites?hl=ja)
・Google Analytics 利用規約(https://www.google.com/intl/ja/analytics/terms/jp.html)