
松山市一番町㈠ 中古マンション レーベン松山一番町 THE TOWER 9階 3,620万円
松山市一番町㈠ 中古マンション レーベン松山一番町 THE TOWER 9階
ペット相談(小型犬/猫/成長時体長50㎝体重10kg以内)
-
所在地松山市一番町1丁目建物名レーベン松山一番町
- 土地
-
地目宅地現況空室面積壁芯66.55㎡(20.13坪)権利所有権道路接道幅
- 建物
-
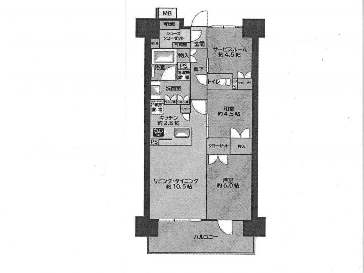
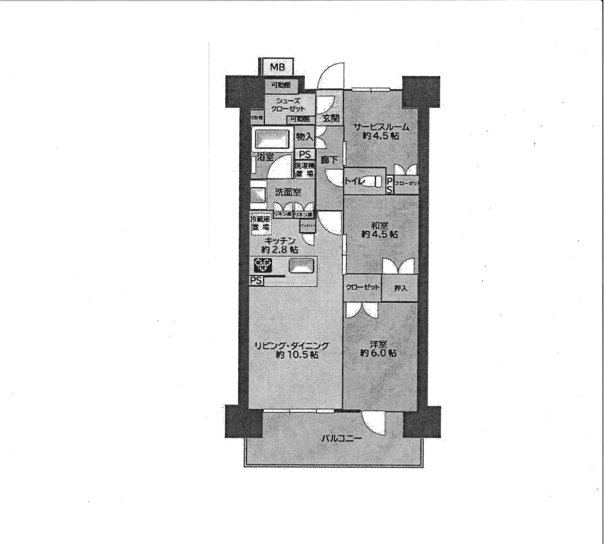
構造鉄筋コンクリート造専有面積66.55㎡(20.13坪)公簿面積引渡相談用途居宅建築平成24年8月築管理費10,500円/月修繕積立金10,500円/月駐車場10,400円/月バルコニー向き間取り2SLDK
- 設備
-
下水水道学校東雲小学校 東中学校交通伊予鉄環状線勝山町 徒歩2分
- 法制限
-
用途商業地域建ペイ容積その他
- アクセス解析ツールについて
- 当サイトでは、サイトの分析と改善を目的として Google によるアクセス解析ツール「Google Analytics」を利用しています。
Google Analytics はデータ収集のため Cookie を使用しています。当サイトをご利用中のウェブブラウザは、アクセスしたページのウェブアドレスや IP アドレス等、特定の情報を Google に自動的に送信します。このデータは匿名で収集されており、個人を特定するものではありません。
収集された情報は、Google のプライバシーポリシーに基づいて管理されます。
この規約に関して、詳しくは以下をご覧下さい。
・Google プライバシーポリシー(https://policies.google.com/technologies/partner-sites?hl=ja)
・Google Analytics 利用規約(https://www.google.com/intl/ja/analytics/terms/jp.html)











































