
松山市千舟町㈥ 中古マンション サーパス市駅前 2階 2,100万円
松山市千舟町㈥ 中古マンション サーパス市駅前 2階
-
所在地松山市千舟町6丁目建物名サーパス市駅前
- 土地
-
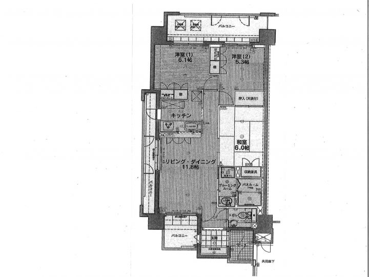
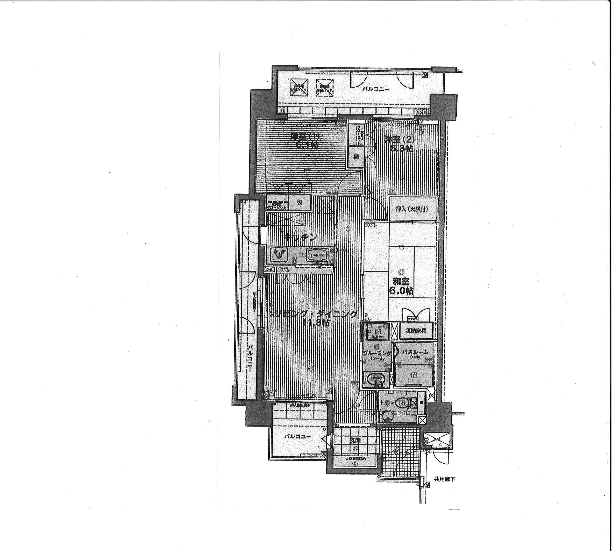
地目宅地現況居住中面積壁芯72.01㎡(21.87坪)権利所有権道路接道幅
- 建物
-
構造鉄骨鉄筋コンクリート造専有面積72.01㎡(21.87坪)公簿面積引渡相談用途居宅建築平成12年2月築管理費18,700円/月修繕積立金8,100円/月駐車場なしバルコニー向き間取り3LDK
- 設備
-
下水水道学校新玉小学校 城西中学校交通伊予鉄環状線市駅前 徒歩3分
- 法制限
-
用途商業地域建ペイ80%容積400%(360%)その他
- アクセス解析ツールについて
- 当サイトでは、サイトの分析と改善を目的として Google によるアクセス解析ツール「Google Analytics」を利用しています。
Google Analytics はデータ収集のため Cookie を使用しています。当サイトをご利用中のウェブブラウザは、アクセスしたページのウェブアドレスや IP アドレス等、特定の情報を Google に自動的に送信します。このデータは匿名で収集されており、個人を特定するものではありません。
収集された情報は、Google のプライバシーポリシーに基づいて管理されます。
この規約に関して、詳しくは以下をご覧下さい。
・Google プライバシーポリシー(https://policies.google.com/technologies/partner-sites?hl=ja)
・Google Analytics 利用規約(https://www.google.com/intl/ja/analytics/terms/jp.html)








































