
松山市東長戸㈣ 中古マンション シャルマンコーポ松山・城北 5階 1,030万円
松山市東長戸㈣ 中古マンション シャルマンコーポ松山・城北 5階
バイク置場有(無料)駐輪場有(無料)
-
所在地松山市東長戸4丁目建物名シャルマンコーポ松山・城北
- 土地
-
地目宅地現況空室面積壁芯84.09㎡(25.43坪)権利所有権道路接道幅
- 建物
-
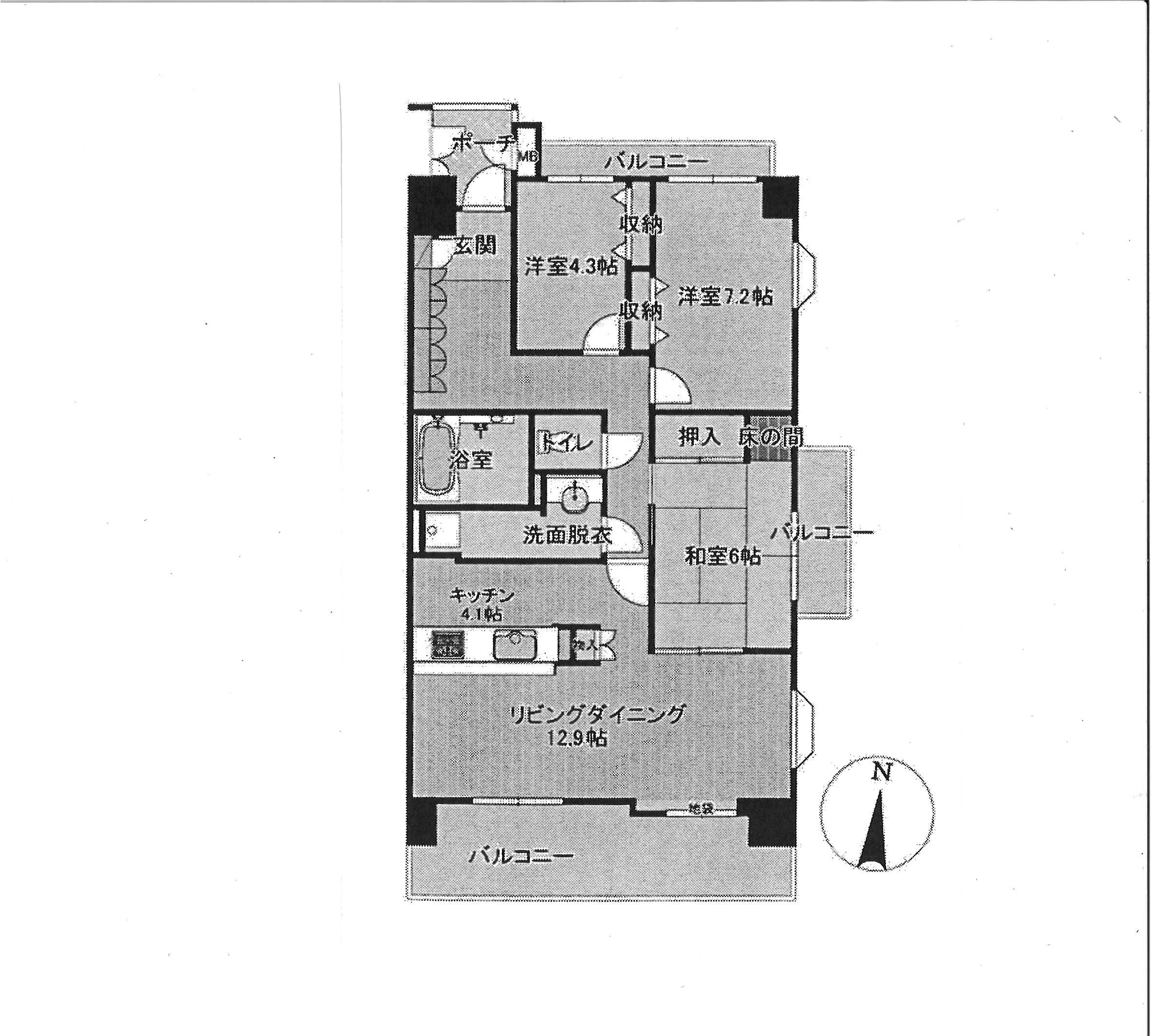
構造鉄筋コンクリート造専有面積84.09㎡(25.43坪)公簿面積引渡相談用途居宅建築平成3年9月築管理費12,930円/月修繕積立金17,200円/月駐車場7,500円/月バルコニー向き南側・東側間取り3LDK
- 設備
-
下水水道学校久枝小学校 鴨川中学校交通伊予鉄東長戸バス停 徒歩6分
- 法制限
-
用途第一種住居地域/近隣商業地域建ペイ容積その他
- アクセス解析ツールについて
- 当サイトでは、サイトの分析と改善を目的として Google によるアクセス解析ツール「Google Analytics」を利用しています。
Google Analytics はデータ収集のため Cookie を使用しています。当サイトをご利用中のウェブブラウザは、アクセスしたページのウェブアドレスや IP アドレス等、特定の情報を Google に自動的に送信します。このデータは匿名で収集されており、個人を特定するものではありません。
収集された情報は、Google のプライバシーポリシーに基づいて管理されます。
この規約に関して、詳しくは以下をご覧下さい。
・Google プライバシーポリシー(https://policies.google.com/technologies/partner-sites?hl=ja)
・Google Analytics 利用規約(https://www.google.com/intl/ja/analytics/terms/jp.html)









































