
松山市三番町㈣ 中古マンション ダイアパレス三番町 9階 3,490万円
松山市三番町㈣ 中古マンション ダイアパレス三番町 9階
-
所在地松山市三番町4丁目建物名ダイアパレス三番町
- 土地
-
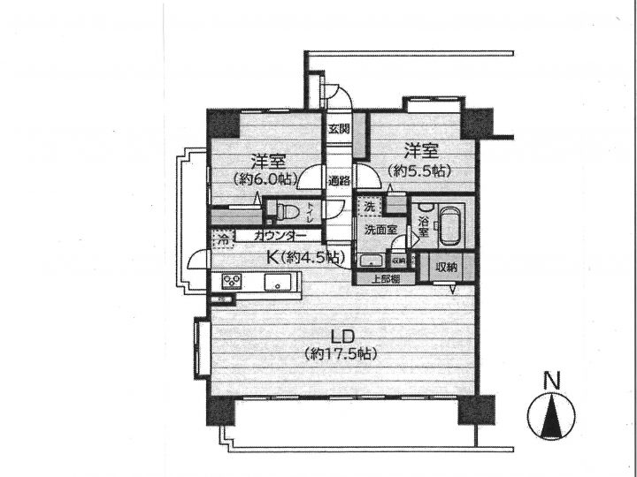
地目宅地現況空室面積壁芯72.16㎡(21.82坪)権利所有権道路接道幅
- 建物
-
構造鉄骨鉄筋コンクリート造専有面積72.16㎡(21.82坪)公簿面積引渡令和8年2月28日用途居宅建築平成13年3月築管理費7,580円/月修繕積立金13,650円/月駐車場17,000円/月バルコニー向き南側・西側間取り2LDK
- 設備
-
下水水道学校番町小学校 東中学校交通伊予鉄千舟町四丁目バス停 徒歩2分 伊予鉄環状線市役所前 徒歩7分
- 法制限
-
用途商業地域建ペイ容積その他バイク置場空なし 駐輪場空きなし
- アクセス解析ツールについて
- 当サイトでは、サイトの分析と改善を目的として Google によるアクセス解析ツール「Google Analytics」を利用しています。
Google Analytics はデータ収集のため Cookie を使用しています。当サイトをご利用中のウェブブラウザは、アクセスしたページのウェブアドレスや IP アドレス等、特定の情報を Google に自動的に送信します。このデータは匿名で収集されており、個人を特定するものではありません。
収集された情報は、Google のプライバシーポリシーに基づいて管理されます。
この規約に関して、詳しくは以下をご覧下さい。
・Google プライバシーポリシー(https://policies.google.com/technologies/partner-sites?hl=ja)
・Google Analytics 利用規約(https://www.google.com/intl/ja/analytics/terms/jp.html)











































