
松山市喜与町㈠ 中古マンション シャンボール喜与町 2階 1,435万円
松山市喜与町㈠ 中古マンション シャンボール喜与町 2階
バイク置場有(無料)駐輪場有(無料)
-
所在地松山市喜与町1丁目建物名シャンボール喜与町
- 土地
-
地目宅地現況空室面積壁芯73.70㎡(22.29坪)権利所有権道路接道幅
- 建物
-
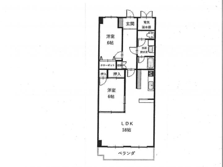
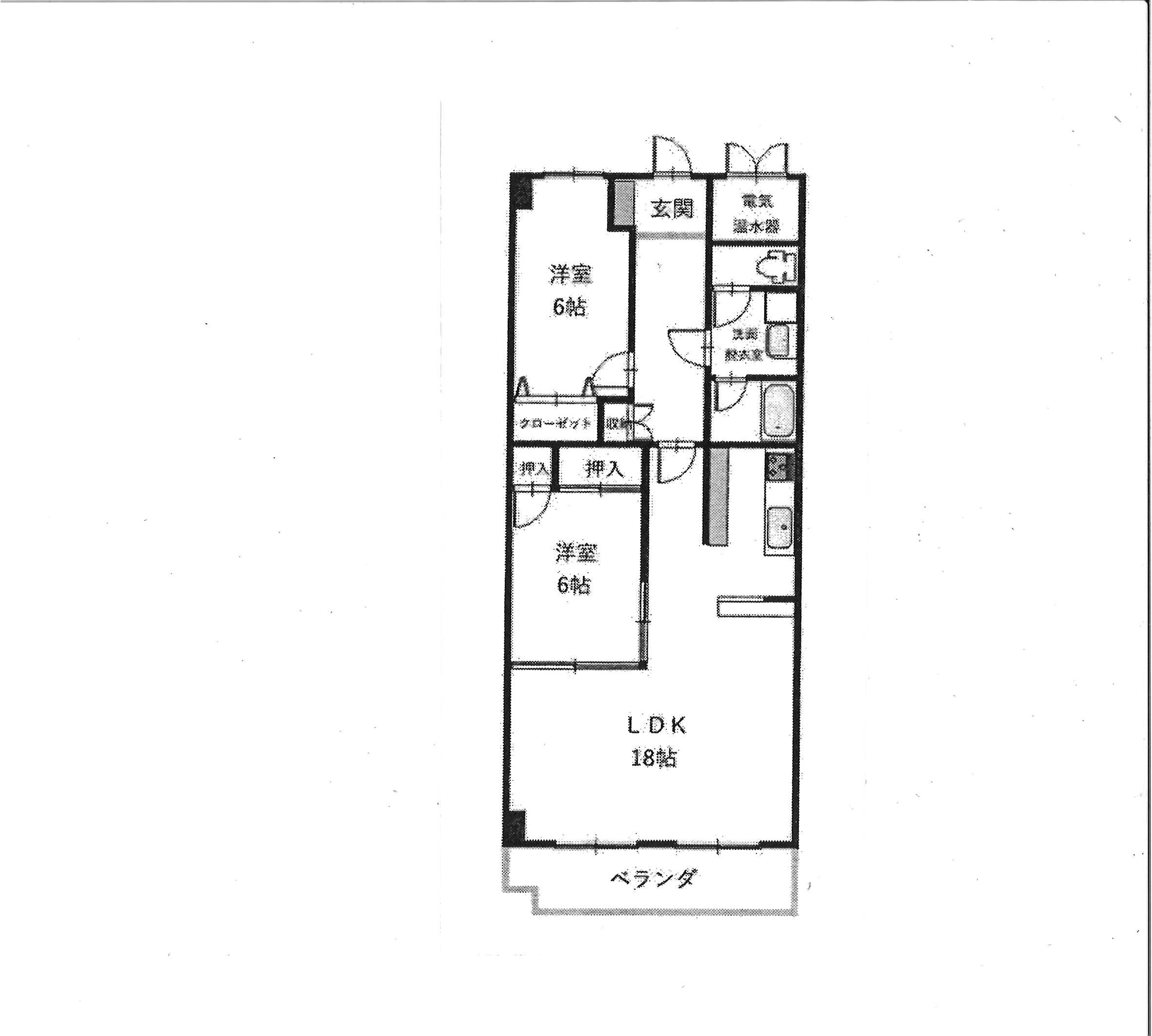
構造鉄筋コンクリート造専有面積73.70㎡(22.29坪)公簿面積引渡相談用途居宅建築昭和56年7月築管理費8,700円/月修繕積立金9,200円/月駐車場15,000円/月バルコニー向き間取り2LDK
- 設備
-
下水水道学校東雲小学校 東中学校交通伊予鉄一番町バス停 徒歩3分 伊予鉄環状線警察署前 徒歩4分
- 法制限
-
用途近隣商業地域建ペイ容積その他
- アクセス解析ツールについて
- 当サイトでは、サイトの分析と改善を目的として Google によるアクセス解析ツール「Google Analytics」を利用しています。
Google Analytics はデータ収集のため Cookie を使用しています。当サイトをご利用中のウェブブラウザは、アクセスしたページのウェブアドレスや IP アドレス等、特定の情報を Google に自動的に送信します。このデータは匿名で収集されており、個人を特定するものではありません。
収集された情報は、Google のプライバシーポリシーに基づいて管理されます。
この規約に関して、詳しくは以下をご覧下さい。
・Google プライバシーポリシー(https://policies.google.com/technologies/partner-sites?hl=ja)
・Google Analytics 利用規約(https://www.google.com/intl/ja/analytics/terms/jp.html)










































