
松山市市坪南3丁目 中古住宅 2,580万円
■積水ハウス施工の軽量鉄骨住宅
■令和5年8月に水廻りリフォーム済(浴室、トイレ、洗面所)
■お庭10坪以上。様々な用途に活用できます
■松山外環状道路へのアクセス良好
■東、西の二方道路
-
所在地松山市市坪南3丁目14-18
- 土地
-
地目宅地現況建付け地面積218.40㎡ / 66.06坪道路東側 幅4m / 西側 幅4m接道幅
- 建物
-
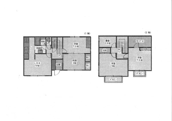
構造軽量鉄骨造建築面積71.61㎡延面積124.99㎡(37.8坪)引渡相談用途居宅建築平成4年(1992年)7月
- 設備
-
下水公共下水道水道公営水道学校椿小学校 / 椿中学校交通伊予鉄バス 市坪バス停より徒歩5分
- 法制限
-
用途第二種中高層住居専用地域建ペイ60%容積200%その他空き家
- アクセス解析ツールについて
- 当サイトでは、サイトの分析と改善を目的として Google によるアクセス解析ツール「Google Analytics」を利用しています。
Google Analytics はデータ収集のため Cookie を使用しています。当サイトをご利用中のウェブブラウザは、アクセスしたページのウェブアドレスや IP アドレス等、特定の情報を Google に自動的に送信します。このデータは匿名で収集されており、個人を特定するものではありません。
収集された情報は、Google のプライバシーポリシーに基づいて管理されます。
この規約に関して、詳しくは以下をご覧下さい。
・Google プライバシーポリシー(https://policies.google.com/technologies/partner-sites?hl=ja)
・Google Analytics 利用規約(https://www.google.com/intl/ja/analytics/terms/jp.html)





































