
松山市星岡5丁目 中古住宅 1,780万円
■石井小学校まで徒歩3分
■各居室ペアガラス使用
■駐車2台+小型車1台可
■閑静な住宅地
-
所在地松山市星岡5丁目4番18号
- 土地
-
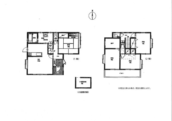
地目宅地現況宅地面積125.59㎡ / 37.99坪道路東側 幅約4m接道幅約10.1m
- 建物
-
構造木造建築面積53.82㎡延面積99.77㎡ / 30.18坪引渡相談用途居宅建築平成8年(1996年)11月
- 設備
-
下水浄化槽水道公営水道学校石井東小学校 / 南第二中学校交通伊予鉄バス 東石井バス停より徒歩7分
- 法制限
-
用途第一種低層住居専用地域建ペイ50%容積80%その他空き家
- アクセス解析ツールについて
- 当サイトでは、サイトの分析と改善を目的として Google によるアクセス解析ツール「Google Analytics」を利用しています。
Google Analytics はデータ収集のため Cookie を使用しています。当サイトをご利用中のウェブブラウザは、アクセスしたページのウェブアドレスや IP アドレス等、特定の情報を Google に自動的に送信します。このデータは匿名で収集されており、個人を特定するものではありません。
収集された情報は、Google のプライバシーポリシーに基づいて管理されます。
この規約に関して、詳しくは以下をご覧下さい。
・Google プライバシーポリシー(https://policies.google.com/technologies/partner-sites?hl=ja)
・Google Analytics 利用規約(https://www.google.com/intl/ja/analytics/terms/jp.html)






































