
松山市本町㈥ 中古マンション ロータリー本町 13階 1,380万円
松山市本町㈥ 中古マンション ロータリー本町 13階
ペット相談(小型犬/猫/管理組合届け要)
バイク置場有(500円/月)駐輪場有(200円/月)
-
所在地松山市本町6丁目建物名ロータリー本町
- 土地
-
地目宅地現況空室面積壁芯93.64㎡(28.32坪)権利所有権道路接道幅
- 建物
-
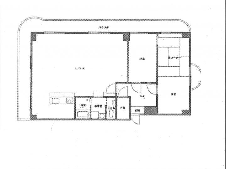
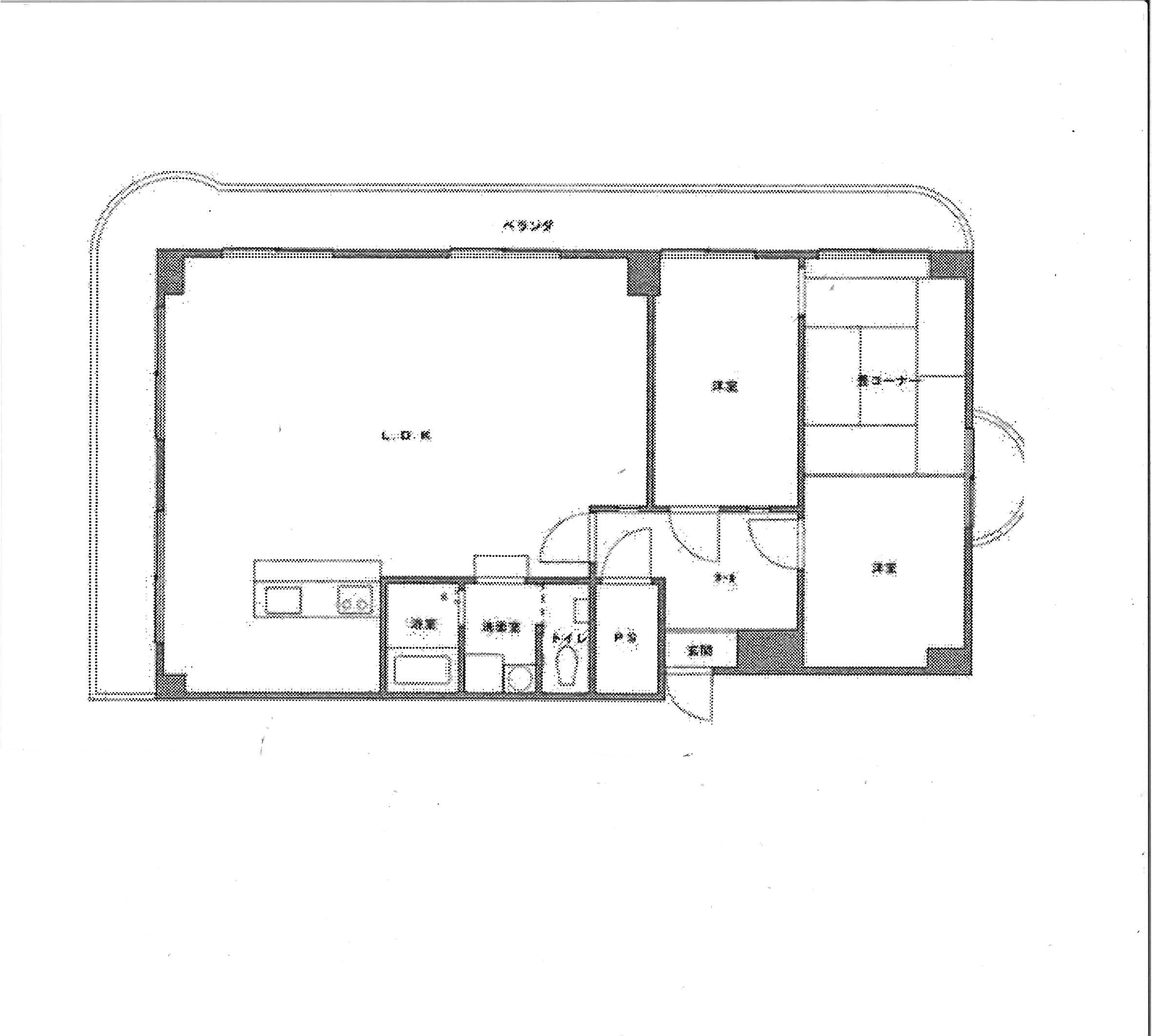
構造鉄骨鉄筋コンクリート造専有面積93.64㎡(28.32坪)公簿面積引渡相談用途居宅建築昭和56年2月築管理費15,000円/月修繕積立金4,800円/月駐車場有 12,000円/月バルコニー向き間取り2LDK
- 設備
-
下水水道学校清水小学校 勝山中学校交通伊予鉄本町線本町六丁目 徒歩1分 伊予鉄本町六丁目バス停 徒歩1分
- 法制限
-
用途近隣商業地域建ペイ90%容積400%その他
- アクセス解析ツールについて
- 当サイトでは、サイトの分析と改善を目的として Google によるアクセス解析ツール「Google Analytics」を利用しています。
Google Analytics はデータ収集のため Cookie を使用しています。当サイトをご利用中のウェブブラウザは、アクセスしたページのウェブアドレスや IP アドレス等、特定の情報を Google に自動的に送信します。このデータは匿名で収集されており、個人を特定するものではありません。
収集された情報は、Google のプライバシーポリシーに基づいて管理されます。
この規約に関して、詳しくは以下をご覧下さい。
・Google プライバシーポリシー(https://policies.google.com/technologies/partner-sites?hl=ja)
・Google Analytics 利用規約(https://www.google.com/intl/ja/analytics/terms/jp.html)





































