
松山市道後姫塚 中古マンション ラフィーネ道後 5階 1,880万円
松山市道後姫塚 中古マンション ラフィーネ道後 5階
ペット相談
-
所在地松山市道後姫塚建物名ラフィーネ道後
- 土地
-
地目宅地現況空室面積壁芯64.36㎡(19.46坪)権利所有権道路接道幅
- 建物
-
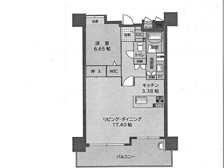
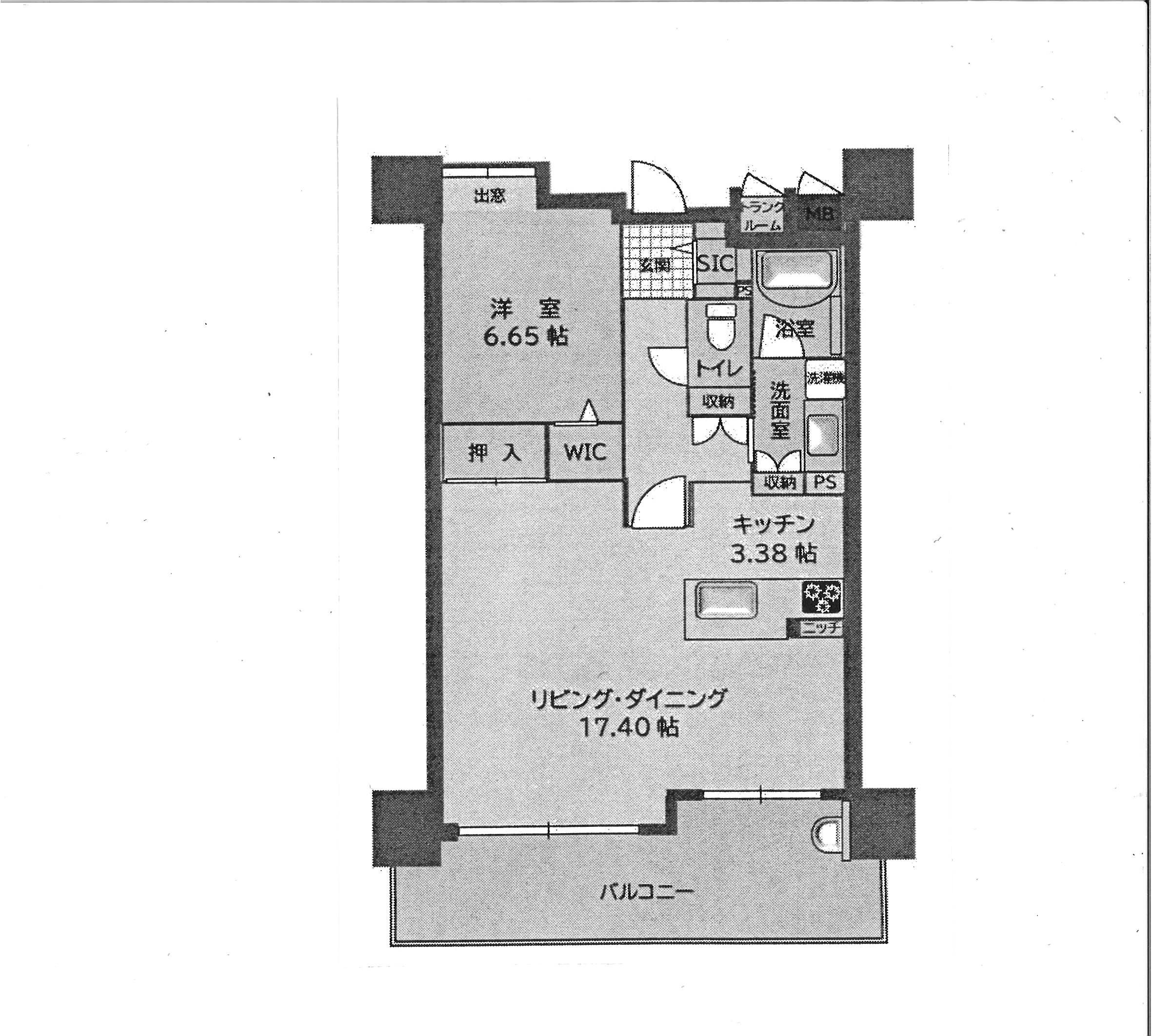
構造鉄筋コンクリート造専有面積64.36㎡(19.46坪)公簿面積引渡相談用途居宅建築平成26年1月築管理費8,860円/月修繕積立金8,340円/月駐車場あり 無料 (月額3,000円に変更の予定あり)バルコニー向き間取り1LDK
- 設備
-
下水水道学校道後小学校 道後中学校交通伊予鉄子規記念館前バス停 徒歩8分 伊予鉄城南線道後温泉 徒歩9分
- 法制限
-
用途商業地域建ペイ容積その他
- アクセス解析ツールについて
- 当サイトでは、サイトの分析と改善を目的として Google によるアクセス解析ツール「Google Analytics」を利用しています。
Google Analytics はデータ収集のため Cookie を使用しています。当サイトをご利用中のウェブブラウザは、アクセスしたページのウェブアドレスや IP アドレス等、特定の情報を Google に自動的に送信します。このデータは匿名で収集されており、個人を特定するものではありません。
収集された情報は、Google のプライバシーポリシーに基づいて管理されます。
この規約に関して、詳しくは以下をご覧下さい。
・Google プライバシーポリシー(https://policies.google.com/technologies/partner-sites?hl=ja)
・Google Analytics 利用規約(https://www.google.com/intl/ja/analytics/terms/jp.html)








































