
松山市紅葉町 中古マンション クレアホームズ道後南ザ・レジデンス 2階 4,580万円
松山市紅葉町 中古マンション クレアホームズ道後南 ザ・レジデンス 2階
ペット飼育可!
-
所在地松山市紅葉町建物名クレアホームズ道後南 ザ・レジデンス
- 土地
-
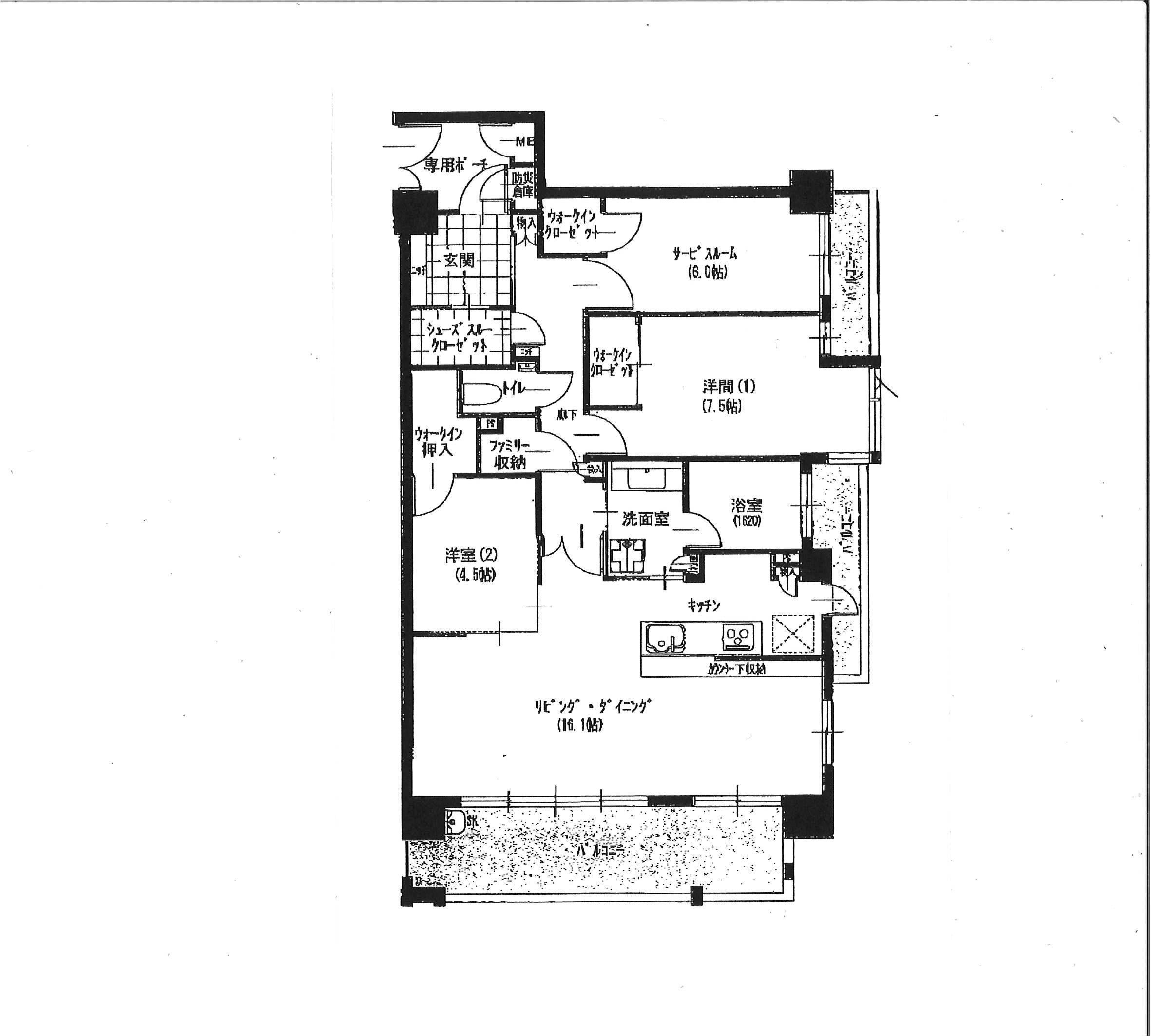
地目宅地現況居住中面積90.10㎡(27.25坪)権利所有権道路接道幅
- 建物
-
構造鉄筋コンクリート造専有面積90.10㎡(27.25坪)公簿面積引渡相談用途居宅建築令和4年11月築管理費12,300円/月修繕積立金6,300円/月駐車場空きあり(1台 機械式)7,000円/月バルコニー向き間取り2SLDK
- 設備
-
下水水道学校道後小学校 道後中学校交通伊予鉄湯渡町バス停 徒歩3分 伊予鉄城南線道後公園 徒歩10分
- 法制限
-
用途第一種中高層住居専用地域建ペイ70%容積200%その他
- アクセス解析ツールについて
- 当サイトでは、サイトの分析と改善を目的として Google によるアクセス解析ツール「Google Analytics」を利用しています。
Google Analytics はデータ収集のため Cookie を使用しています。当サイトをご利用中のウェブブラウザは、アクセスしたページのウェブアドレスや IP アドレス等、特定の情報を Google に自動的に送信します。このデータは匿名で収集されており、個人を特定するものではありません。
収集された情報は、Google のプライバシーポリシーに基づいて管理されます。
この規約に関して、詳しくは以下をご覧下さい。
・Google プライバシーポリシー(https://policies.google.com/technologies/partner-sites?hl=ja)
・Google Analytics 利用規約(https://www.google.com/intl/ja/analytics/terms/jp.html)





























