
松山市石手㈣ 中古マンション ドミール道後 3階 500万円
松山市石手㈣ 中古マンション ドミール道後 3階
バイク置場有 駐輪場有
-
所在地松山市石手4丁目建物名ドミール道後
- 土地
-
地目宅地現況賃貸中面積内法62.03㎡(18.76坪)権利所有権道路接道幅
- 建物
-
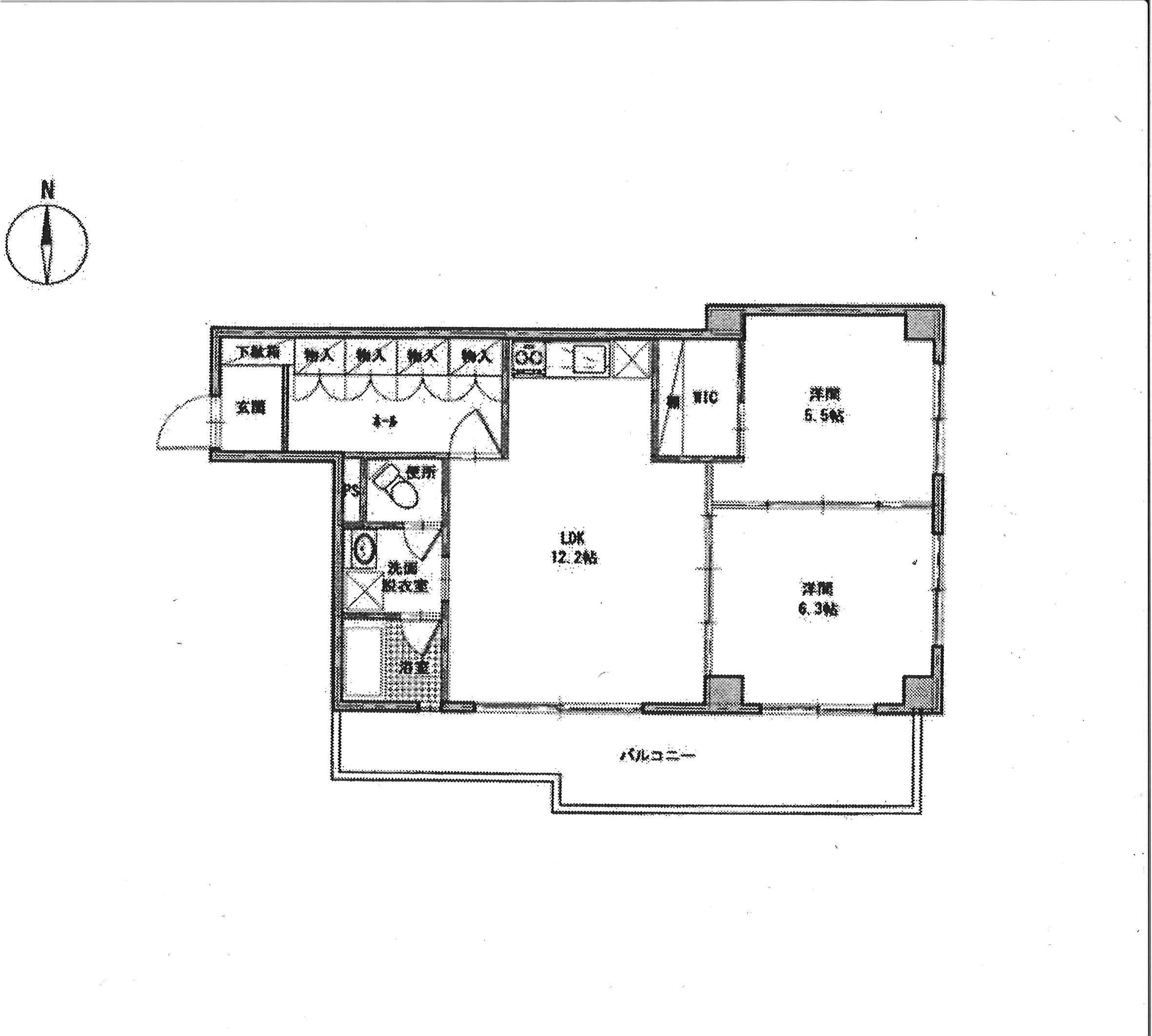
構造鉄筋コンクリート造専有面積62.03㎡(18.76坪)公簿面積引渡相談用途居宅建築昭和49年2月築管理費6,300円/月修繕積立金8,700円/月駐車場5,000円/月バルコニー向き南側間取り2LDK
- 設備
-
下水水道学校道後小学校 道後中学校交通伊予鉄石手4丁目バス停 徒歩2分 伊予鉄城南線道後公園 徒歩15分
- 法制限
-
用途第一種中高層住居専用地域建ペイ60容積200その他
- アクセス解析ツールについて
- 当サイトでは、サイトの分析と改善を目的として Google によるアクセス解析ツール「Google Analytics」を利用しています。
Google Analytics はデータ収集のため Cookie を使用しています。当サイトをご利用中のウェブブラウザは、アクセスしたページのウェブアドレスや IP アドレス等、特定の情報を Google に自動的に送信します。このデータは匿名で収集されており、個人を特定するものではありません。
収集された情報は、Google のプライバシーポリシーに基づいて管理されます。
この規約に関して、詳しくは以下をご覧下さい。
・Google プライバシーポリシー(https://policies.google.com/technologies/partner-sites?hl=ja)
・Google Analytics 利用規約(https://www.google.com/intl/ja/analytics/terms/jp.html)




































