
松山市土居田町 中古マンション ジョイフルプラザ土居田 2階 1,980万円
松山市土居田町 中古マンション ジョイフルプラザ土居田 2階
ペット可(小型犬・猫)
-
所在地松山市土居田町建物名ジョイフルプラザ土居田
- 土地
-
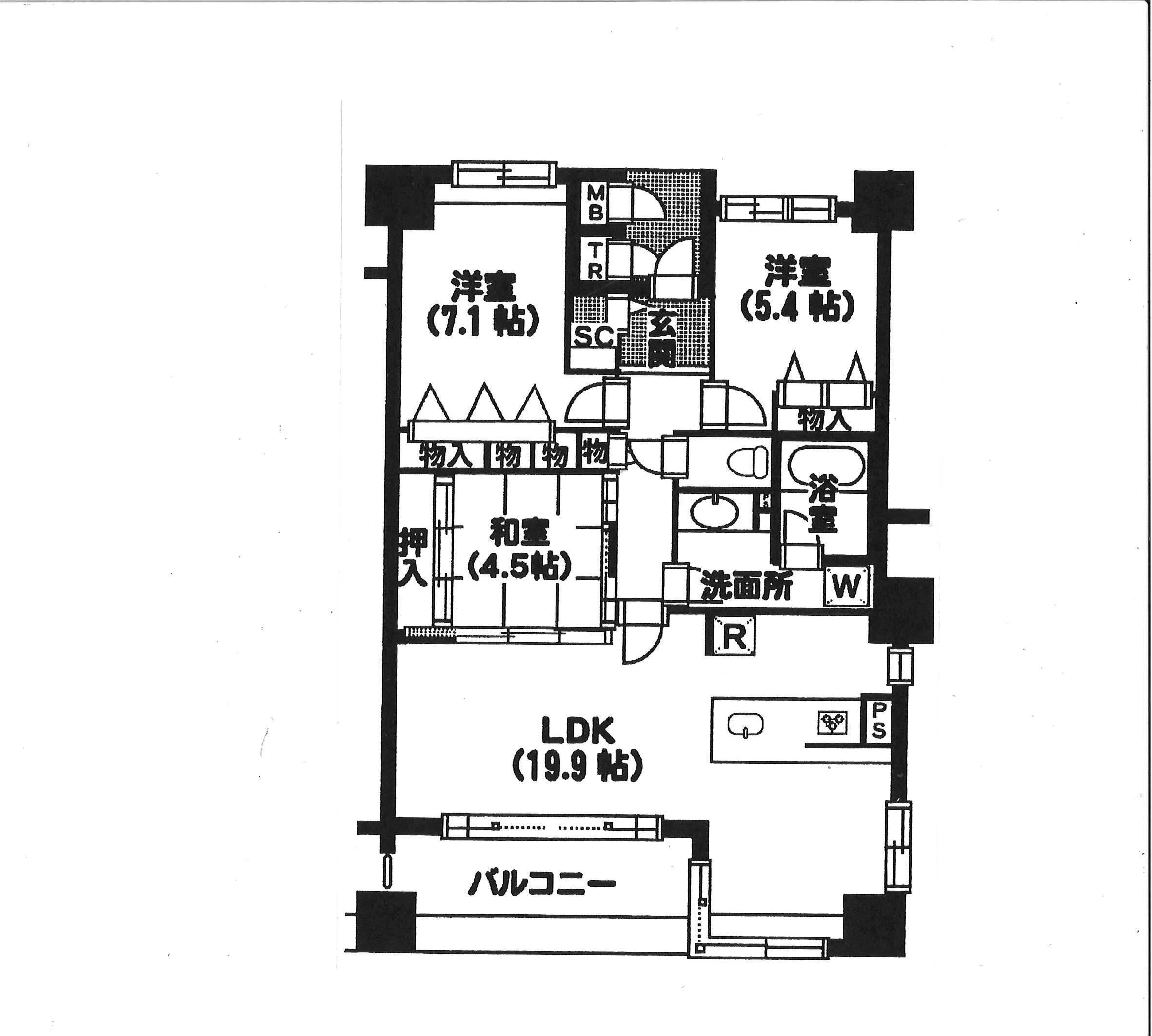
地目宅地現況空室面積壁芯82.23㎡(24.87坪)権利所有権道路接道幅
- 建物
-
構造鉄骨鉄筋コンクリート造専有面積82.23㎡(24.87坪)公簿面積引渡即時用途居宅建築平成17年2月築管理費9,300円/月修繕積立金5,700円/月駐車場空きあり 1台 5,000円/月 ※🄿NO.9 (5年毎に抽選あり)バルコニー向き間取り3LDK
- 設備
-
下水水道学校たちばな小学校 雄新中学校交通伊予鉄国土交通省前バス停 徒歩3分 伊予鉄郡中線土居田駅 徒歩6分
- 法制限
-
用途第一種住居地域建ペイ60%容積200%その他
- アクセス解析ツールについて
- 当サイトでは、サイトの分析と改善を目的として Google によるアクセス解析ツール「Google Analytics」を利用しています。
Google Analytics はデータ収集のため Cookie を使用しています。当サイトをご利用中のウェブブラウザは、アクセスしたページのウェブアドレスや IP アドレス等、特定の情報を Google に自動的に送信します。このデータは匿名で収集されており、個人を特定するものではありません。
収集された情報は、Google のプライバシーポリシーに基づいて管理されます。
この規約に関して、詳しくは以下をご覧下さい。
・Google プライバシーポリシー(https://policies.google.com/technologies/partner-sites?hl=ja)
・Google Analytics 利用規約(https://www.google.com/intl/ja/analytics/terms/jp.html)









































