株式会社岩上ハウジング

(株)岩上ハウジングでは愛媛県松山市を中心に不動産売買・賃貸マンションアパート、事務所、店舗等の仲介業務を行っています。

089-947-5525
089-947-5548
スタッフおすすめ物件
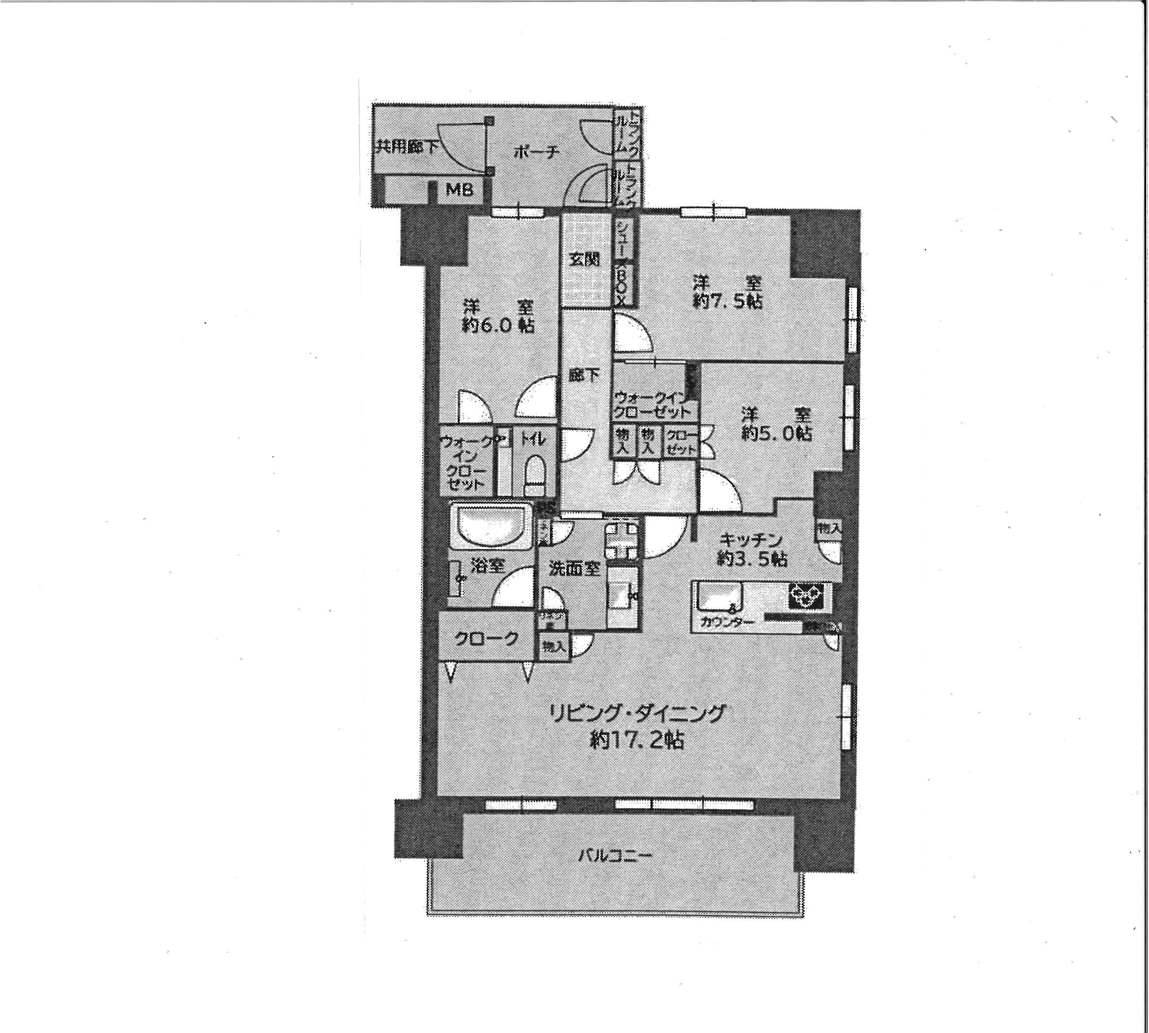
松山市一番町㈠ 中古マンション レーベン松山一番町 THE  TOWER 5階 3,980万円

松山市一番町㈠ 中古マンション レーベン松山一番町 THE TOWER 5階

ペット相談(小型犬/猫)

 

  • 北外観
  • 東南外観
  • 玄関前
  • オートロック
  • メールボックス
  • 宅配ボックス
  • ペット足洗い場
  • 敷地内
  • ごみ置き場
  • 駐輪場
  • 機械式駐車場
  • 北道路
  • 東道路

所在地
松山市一番町1丁目
建物名
レーベン松山一番町 THE TOWER
土地
地目
宅地
現況
居住中
面積
壁芯91.80㎡(27.76坪)
権利
所有権
道路
接道幅
建物
構造
鉄筋コンクリート造
専有面積
91.80㎡(27.76坪)
公簿面積
引渡
相談
用途
居宅
建築
平成30年8月築
管理費
14,500円/月
修繕積立金
14,360円/月
駐車場
バルコニー向き
間取り
3LDK
設備
下水
水道
学校
東雲小学校 東中学校
交通
伊予鉄環状線勝山町 徒歩2分
法制限
用途
商業地域
建ペイ
容積
その他
バイク置場有(1,000円/月) 駐輪場有(400円/月)

お問い合わせフォーム

お問い合わせ物件
松山市一番町㈠ 中古マンション レーベン松山一番町 THE  TOWER 5階 3,980万円
お名前
メールアドレス
メールアドレス(再入力)
住所
お電話番号
- -
お問い合わせ内容
アクセス解析ツールについて
当サイトでは、サイトの分析と改善を目的として Google によるアクセス解析ツール「Google Analytics」を利用しています。
Google Analytics はデータ収集のため Cookie を使用しています。当サイトをご利用中のウェブブラウザは、アクセスしたページのウェブアドレスや IP アドレス等、特定の情報を Google に自動的に送信します。このデータは匿名で収集されており、個人を特定するものではありません。
収集された情報は、Google のプライバシーポリシーに基づいて管理されます。
この規約に関して、詳しくは以下をご覧下さい。
・Google プライバシーポリシー(https://policies.google.com/technologies/partner-sites?hl=ja)
・Google Analytics 利用規約(https://www.google.com/intl/ja/analytics/terms/jp.html)

松山市一番町㈠ 中古マンション レーベン松山一番町 THE  TOWER 5階
3,980万円

松山市勝山町㈠ 中古マンション ジオ松山勝山通り 3階 値下げしました。
2,990万円

松山市歩行町㈠ 中古マンション クレアホームズ歩行町 2階 値下げしました。
2,980万円

松山市高岡町 中古マンション ジョイフルプラザ高岡弐番館 12階(値下げしました。)
1,199万円

松山市春日町 中古マンション サーパス市駅南 10階 値下げしました。
2,600万円

松山市保免上㈠ 中古マンション スプレンド保免 3階 値下げしました。
1,599万円

松山市山越㈣ 中古マンション シエナ松山ハイツ 8階 値下げしました。
520万円

松山市枝松㈥ 中古マンション 枝松パークホームズ 5階
1,300万円

松山市石手㈣ 中古マンション ドミール道後 3階 値下げしました。
430万円

松山市勝山町㈠ 中古マンション ジオ松山勝山通り 13階 値下げしました。
2,690万円

松山市湊町㈠ 中古マンション ジョイフルプラザ湊町 10階
1,880万円

松山市朝生田町㈦ 中古マンション サーパス朝生田 10階
1,620万円

松山市歩行町㈠ 中古マンション クレアセトル歩行町 4階
1,980万円

松山市紅葉町 中古マンション クレアホームズ道後南ザ・レジデンス 2階
4,580万円

松山市三番町㈤ 中古マンション シティタワー松山 6階
3,200万円

松山市会津町 中古マンション グランディア会津 8階
2,180万円

松山市余戸南㈢ 中古マンション 朝日プラザ松山余戸 5階 値下げしました。
1,190万円

松山市山越㈠ 中古マンション グランコート山越 8階 値下げしました。
1,350万円

松山市空港通(一) 中古マンション サーパス空港通 11階 値下げしました。
1,880万円

松山市室町(二) 中古マンション サンシティ市駅南 5階 値下げしました。
2,090万円